Appartamento in affitto - Sunnärai 3, 6072 Sachseln
Perché amerai questa proprietà
Posizione centrale tranquilla
Spazio cantina privato
Sistema di ventilazione controllata
Organizza una visita
Prenota una visita con von oggi!
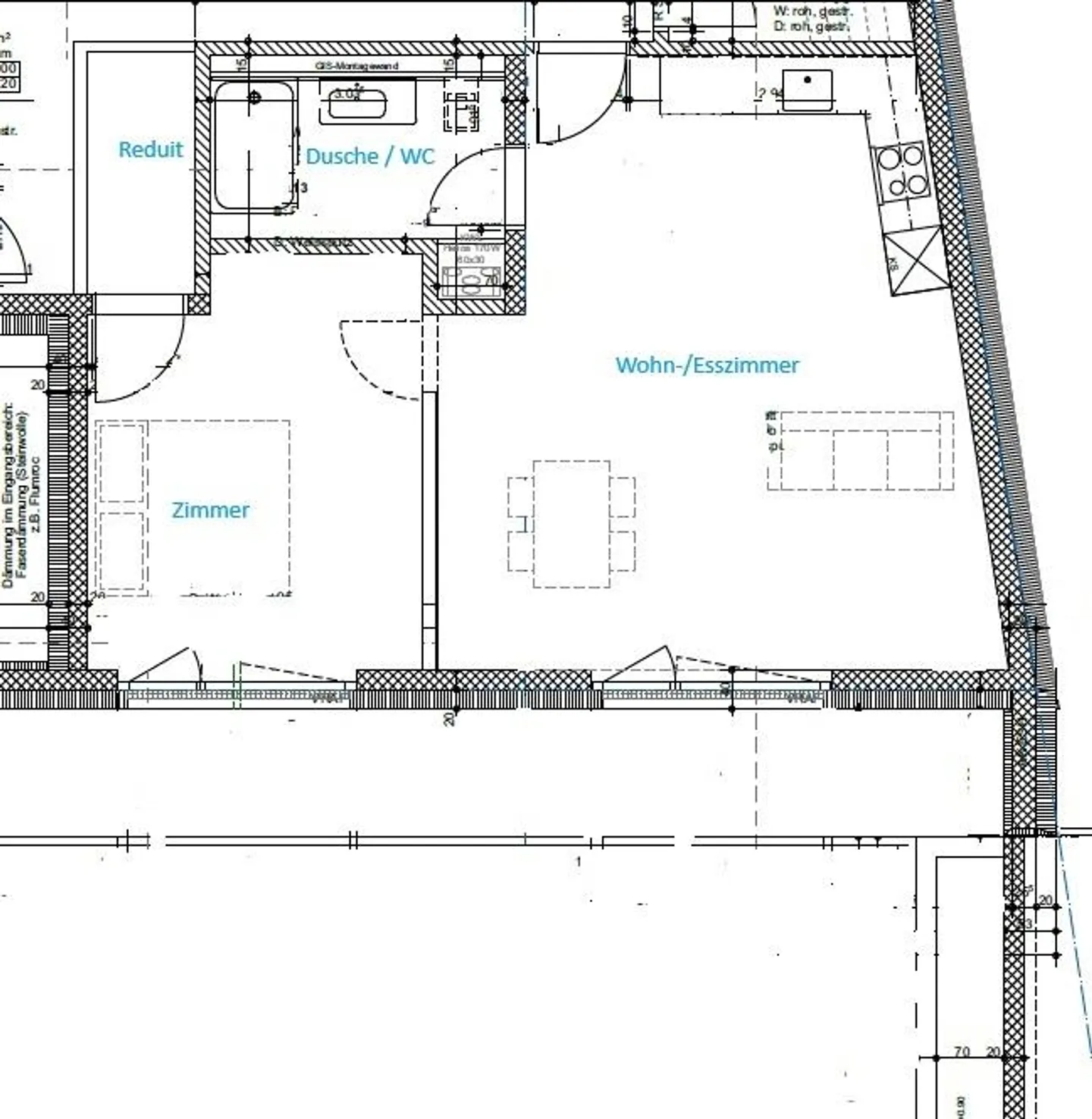
Appartamento 2.5 stanze al piano terra
Bell'appartamento 2.5 stanze in una posizione centrale e tranquilla
- Cantina privata di circa 12 m2
- Posto auto in garage sotterranea disponibile se necessario per CHF 120.- /mese
- Ventilazione controllata dell'edificio e automazione dell'edificio (Loxone)
- Lavanderia allo stesso piano proprio accanto all'appartamento
- Occupazione immediata possibile o su accordo
Ripartizione dei costi
- Affitto netto
- CHF 1'535
- Costi aggiuntivi
- CHF 135
- Totale delle locazioni
- CHF 1'535
Dettagli immobile
- Disponibile dal
- Su accordo
- Stanze
- 2.5
- Anno di costruzione
- 2020
- Anno di ristrutturazione
- 2020
- Superficie abitabile
- 56 m²
- Piano
- Terra
- Piani dell'edificio
- 3



