1 / 7

Attico in affitto - Mattenstrasse 3, 3073 Gümligen

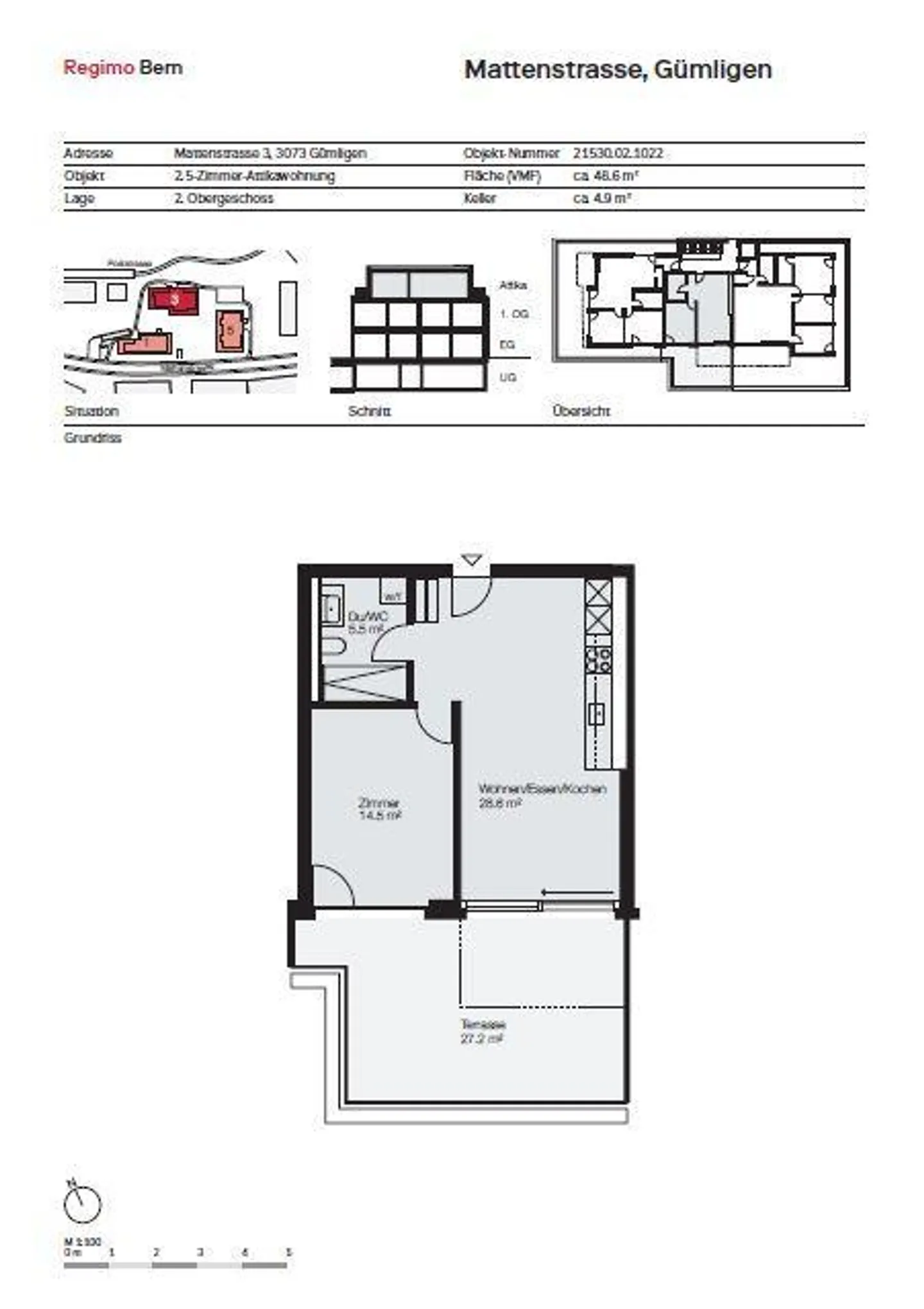
2.5 rooms • 49 m² • 2° piano
CHF 1’705.-
CHF 418 m² / year

Perché amerai questa proprietà

Terrazza spaziosa di 69m²

Cucina aperta moderna

Parquet in rovere naturale

Organizza una visita

Prenota una visita oggi!

Regimo Bern AG
Questa descrizione è stata tradotta automaticamente da Tedesco.

Appartamento attico attraente in un'area residenziale ben curata

Posizione di trasporto favorevole, layout attraente, arredi moderni, molta luce e aria: questi vantaggi rendono questo appartamento un luogo particolarmente desiderabile in cui vivere e stare. L'appartamento attico moderno e confortevole è pronto per te in un'area residenziale ben curata. Ottimi parchi giochi e la vicinanza a scuola materna e scuola primaria sono solo alcuni degli altri vantaggi.

Per la tua qualità abitativa:

- Parquet in rovere naturale oliato nel soggiorno e nelle camere da lett...

Dettagli immobile

Disponibile dal
01.01.1970
Stanze
2.5
Anno di costruzione
2020
Superficie abitabile
49
Piano

Caratteristiche

Giardino
Garage
Balcone
Vista libera
Ascensore
Tv via cavo
Animali ammessi

Agenzia

Regimo Bern AG
Ref: 21530.02.1022

Località

Mattenstrasse 3, 3073 Gümligen

Fonti