Appartamento in affitto - Eggenweg 3, 3123 Belp
Perché amerai questa proprietà
Ampio soggiorno luminoso
Cucina di alta qualità con isola
Accesso diretto al patio giardino
Organizza una visita
Prenota una visita oggi!
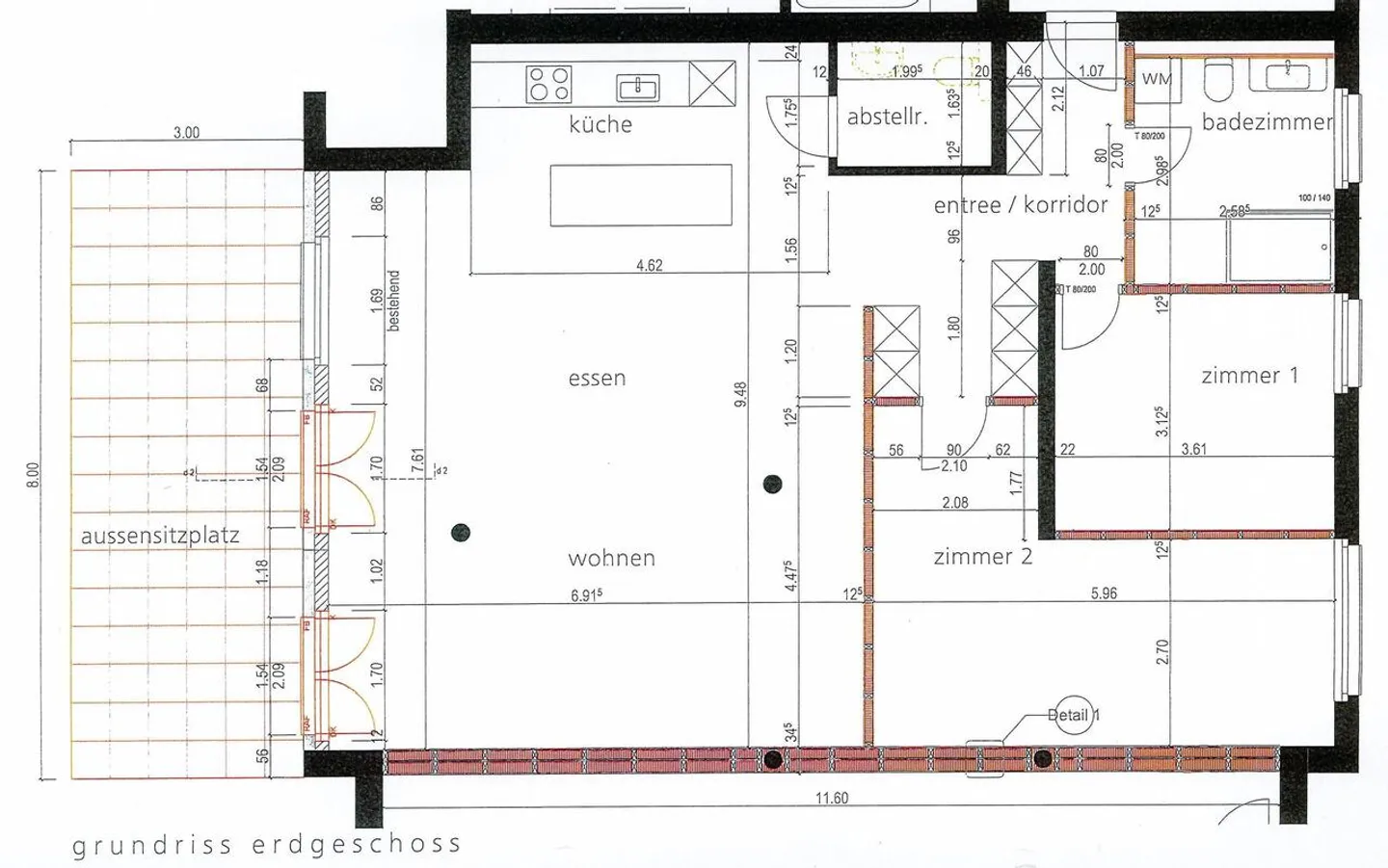
In affitto: Appartamento moderno di 3,5 stanze (117m2) nel centro del villaggio di Belp
Nel cuore del villaggio di Belp, in una posizione centrale ma tranquilla, vi offriamo questo spazioso appartamento al piano terra di 3,5 stanze con area giardino. L'appartamento di nuova costruzione offre una disposizione vantaggiosa di 117 m2 e il massimo comfort secondo gli standard di proprietà! L'appartamento può essere occupato immediatamente o su accordo.
L'appartamento colpisce tra l'altro per i seguenti vantaggi:
* Zona giorno e pranzo aperta e luminosa: Spazio ampio con finestre a tutta ...
Ripartizione dei costi
- Affitto netto
- CHF 2’370
- Costi aggiuntivi
- CHF 290
- Totale delle locazioni
- CHF 2’370
Dettagli immobile
- Disponibile dal
- 30.01.2026
- Stanze
- 3.5
- Anno di costruzione
- 2025
- Superficie abitabile
- 117 m²


