Appartamento in affitto - Chemin Des Marguerites 3, 2350 Saignelégier
Perché amerai questa proprietà
Comunità intergenerazionale
Cucina moderna aperta
Balcone con vista panoramica
Organizza una visita
Prenota una visita oggi!
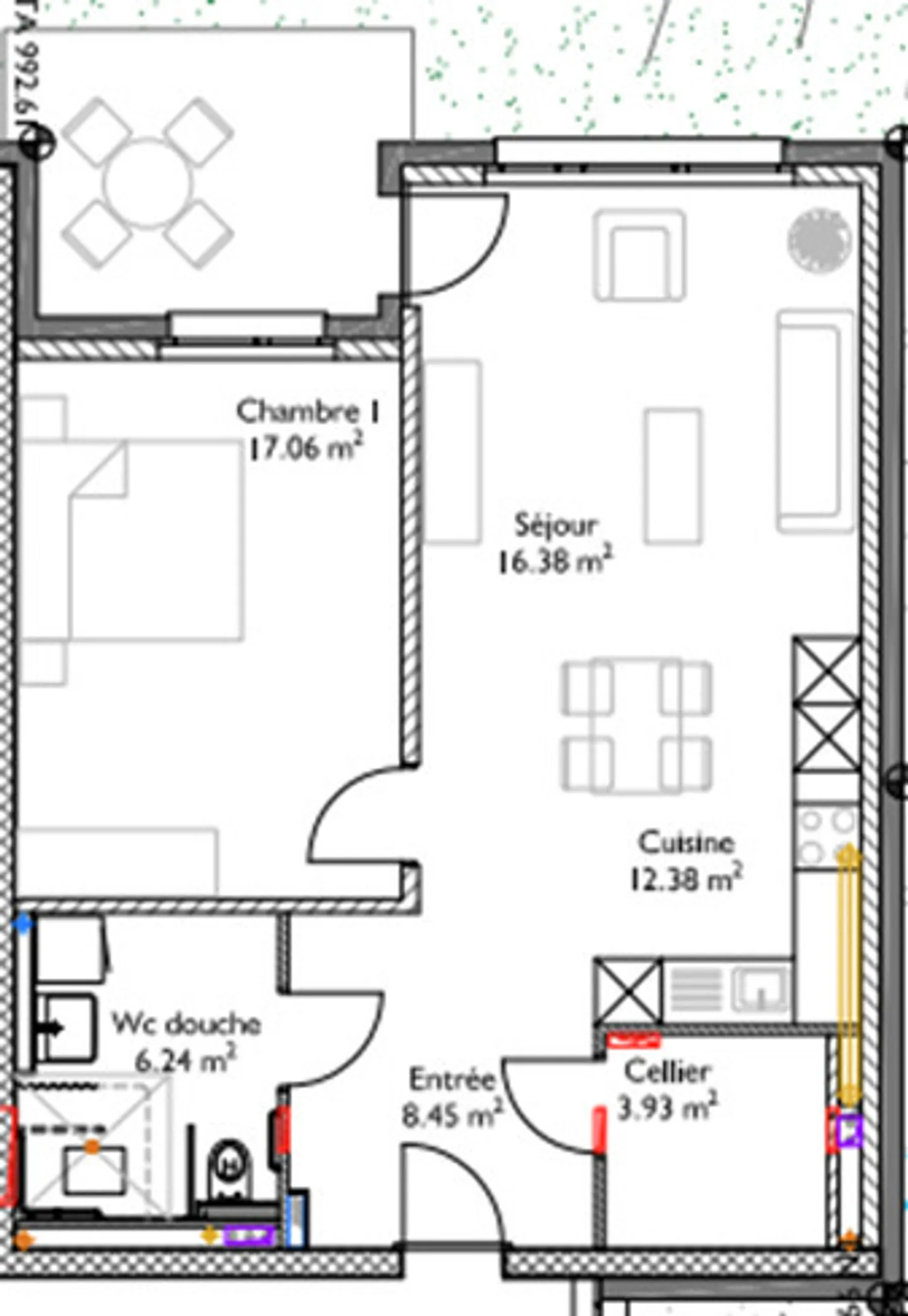
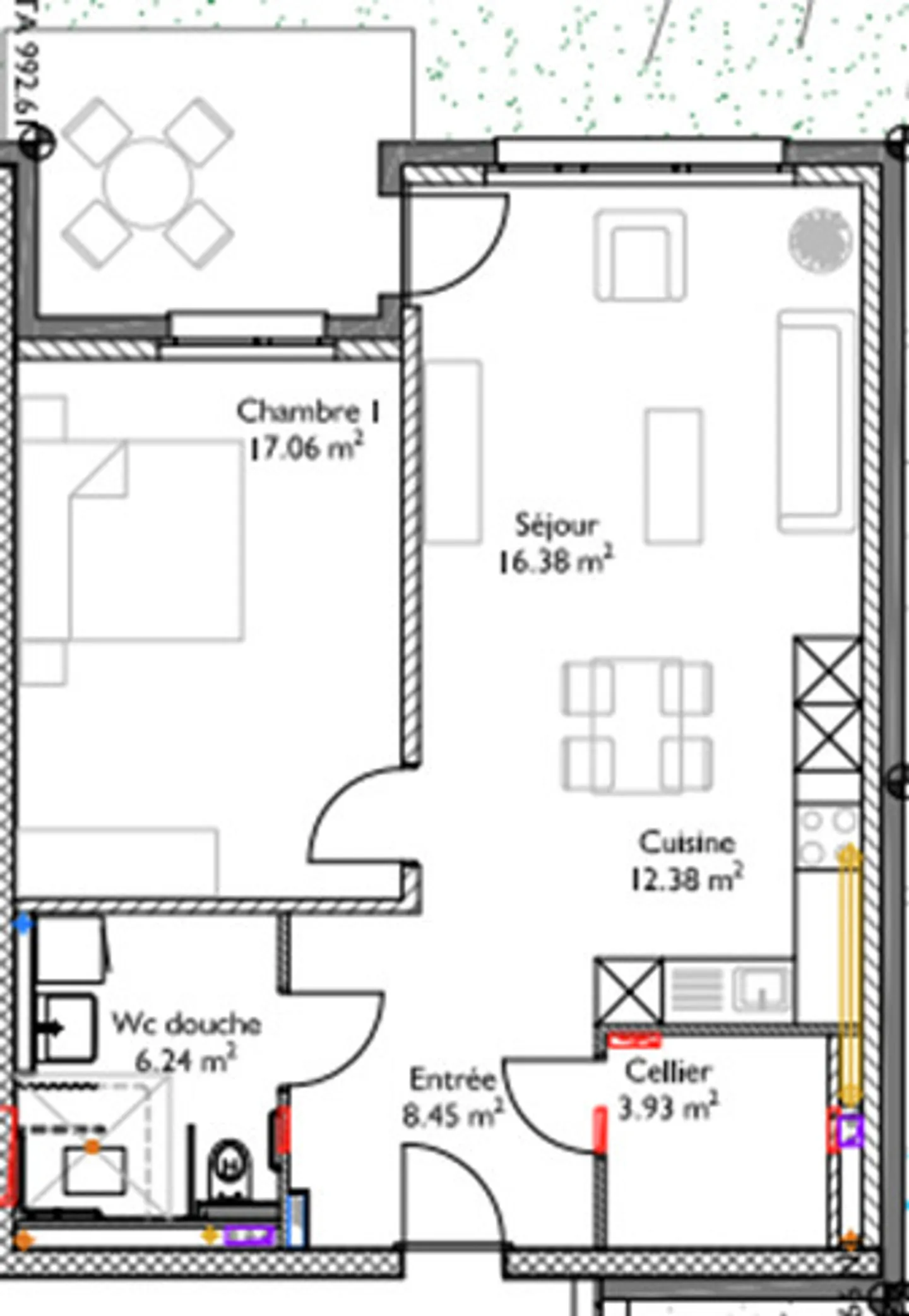
Appartamenti adattati o protetti di 65 m2
Questa residenza si trova nelle vicinanze del nido/UAPE e dell'EMS delle Franches-Montagnes. Offre molti servizi nelle vicinanze e promuove un ambiente intergenerazionale.
Appartamenti adattati di 2,5 locali comprendenti:
- Un ingresso di 8 m2
- Una cucina attrezzata aperta sul soggiorno di 29 m2
- Un balcone
- Un bagno con doccia italiana di 6 m2
- Una camera da letto di 17 m2
- Un ripostiglio di 4 m2
- Una cantina di 5 m2 (nella stessa piano dell'appartamento)
- Possibilità di affittare un po...
Ripartizione dei costi
- Affitto netto
- CHF 1’400
- Costi aggiuntivi
- CHF 170
- Totale delle locazioni
- CHF 1’400
Dettagli immobile
- Disponibile dal
- 01.01.1970
- Stanze
- 2.5
- Anno di costruzione
- 2024
- Superficie abitabile
- 65 m²
- Superficie utilizzabile
- 65 m²



