Appartamento in affitto - Chalchthorestrasse 2a, 8280 Kreuzlingen
Perché amerai questa proprietà
Certificato Minergie sostenibile
Terrazza privata con vista
Ampio soggiorno open space
Organizza una visita
Prenota una visita con Nic oggi!
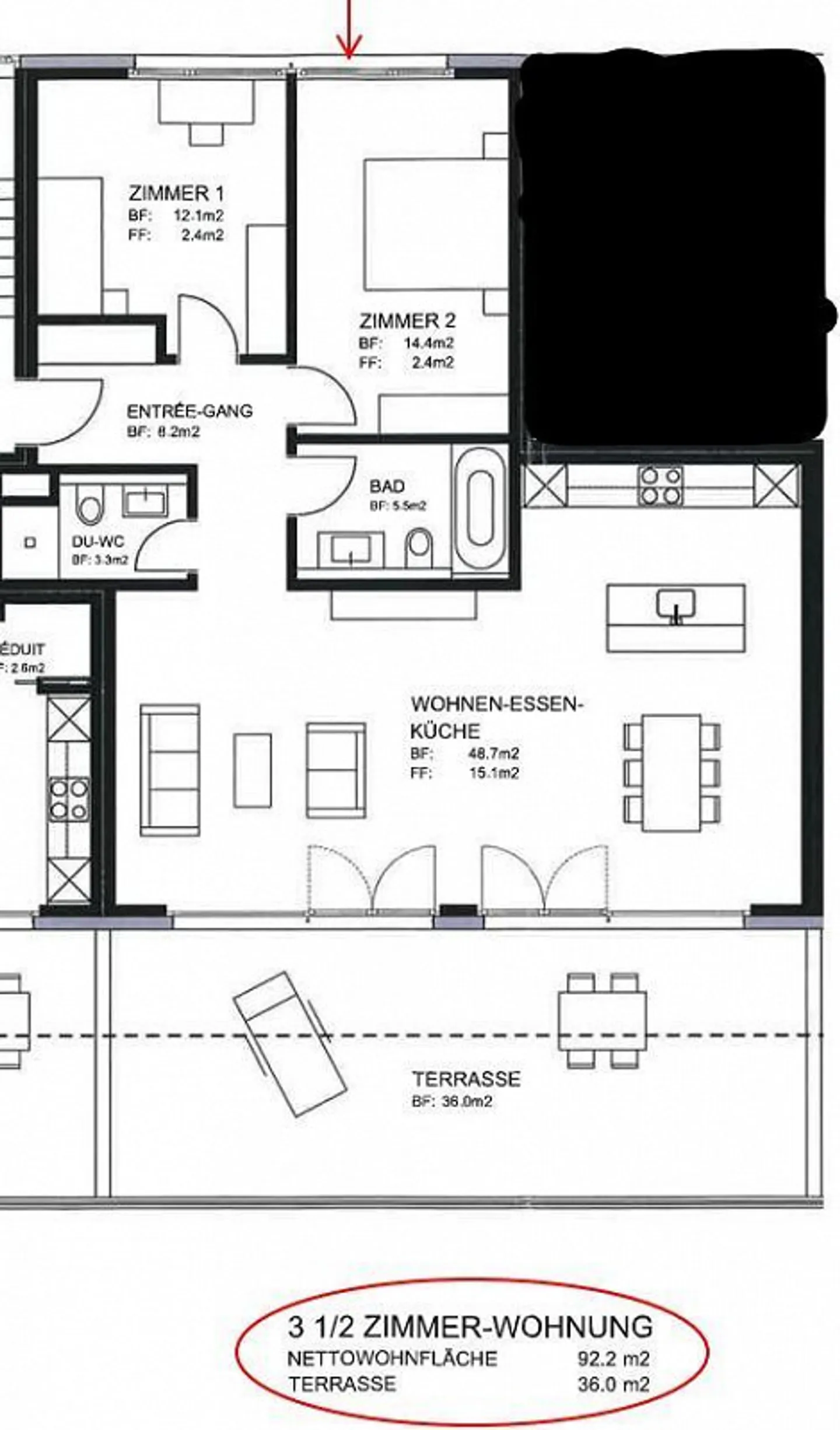
Moderno appartamento mansardato di 3,5 stanze a Kreuzlingen
Scopri questo appartamento mansardato luminoso di 3,5 stanze al 4° piano di un moderno edificio certificato Minergie del 2009. Con 92 m² di superficie abitabile e una posizione tranquilla, questo appartamento offre il rifugio perfetto per famiglie o coppie che apprezzano il comfort e la sostenibilità.
_L'appartamento si distingue per:_
Cucina moderna: Dotazioni di alta qualità con armadi neri, piano di lavoro a isola e elettrodomestici in acciaio inox, incluso lavastoviglie
Ampio soggiorno/sala da ...
Ripartizione dei costi
- Affitto netto
- CHF 2’315
- Costi aggiuntivi
- CHF 225
- Totale delle locazioni
- CHF 2’315
Dettagli immobile
- Disponibile dal
- 01.02.2026
- Stanze
- 3.5
- Superficie abitabile
- 92 m²
- Piano
- 4°



