Appartamento in affitto - Hochstrasse 294, 8200 Schaffhausen
Perché amerai questa proprietà
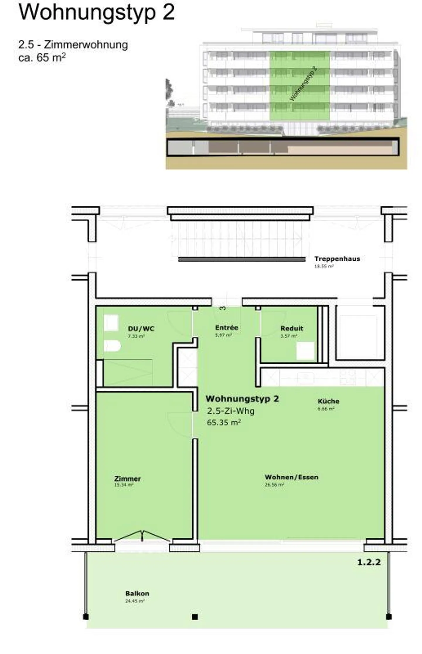
Ampio balcone di 24 m²
Cucina aperta con granito
Eleganti pavimenti in rovere
Organizza una visita
Prenota una visita con Tatjana oggi!
Bell'abitazione in una posizione centrale
Nuovo edificio con buone strutture commerciali, buone connessioni di autobus e a pochi minuti a piedi dalla città vecchia di Sciaffusa.
Espansione moderna e comfort, pavimenti in parquet di rovere, bagno con doccia, cucina aperta con piano in granito, ingresso con guardaroba e armadi a muro, ridotto con lavatrice e asciugatrice, grande balcone (circa 24 m2)
Un posto auto nel garage sotterraneo può essere affittato per 120 CHF al mese.
Ripartizione dei costi
- Affitto netto
- CHF 1’520
- Costi aggiuntivi
- CHF 170
- Totale delle locazioni
- CHF 1’520
Dettagli immobile
- Disponibile dal
- Su accordo
- Stanze
- 2.5
- Superficie abitabile
- 65 m²
- Piano
- 3°



