Appartamento in affitto - Unterwartweg 29, 4132 Muttenz
Perché amerai questa proprietà
Cucina moderna con balcone
Parquet nelle aree giorno
Vicino ai mezzi pubblici
Organizza una visita
Prenota una visita con Elias oggi!
Verde, più verde, custode!
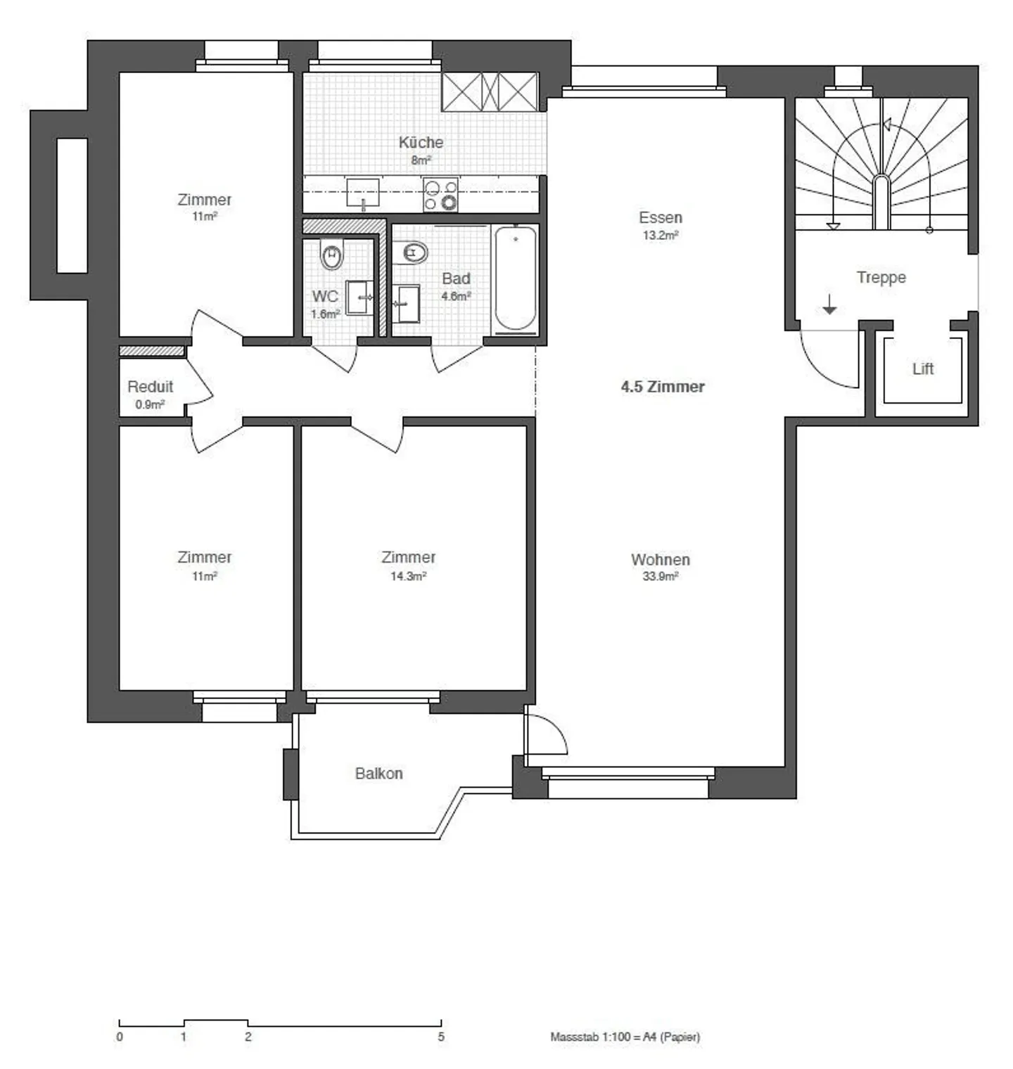
In una posizione tranquilla, affittiamo questo appartamento di 4,5 stanze con una generosa disposizione che supera le vostre aspettative.
Nonostante la posizione periferica, in pochi minuti a piedi è possibile raggiungere i mezzi pubblici, sia per Basilea/Pratteln che la fermata dell'autobus per Münchenstein. La scuola primaria si trova nelle immediate vicinanze della proprietà.
L'accesso vicino all'autostrada (Basilea/Zurigo o Basilea/Laufen) offre un grande vantaggio per gli automobilisti. Poi...
Ripartizione dei costi
- Affitto netto
- CHF 2’300
- Costi aggiuntivi
- CHF 260
- Totale delle locazioni
- CHF 2’300
Dettagli immobile
- Disponibile dal
- 13.11.2025
- Stanze
- 4.5
- Piano
- 3°



