Appartamento in affitto - Langenhagweg 28a, 4123 Allschwil
Perché amerai questa proprietà
Ampio balcone per relax
Pavimenti in rovere di alta qualità
Doccia walk-in con parete in vetro
Organizza una visita
Prenota una visita con Grunder oggi!
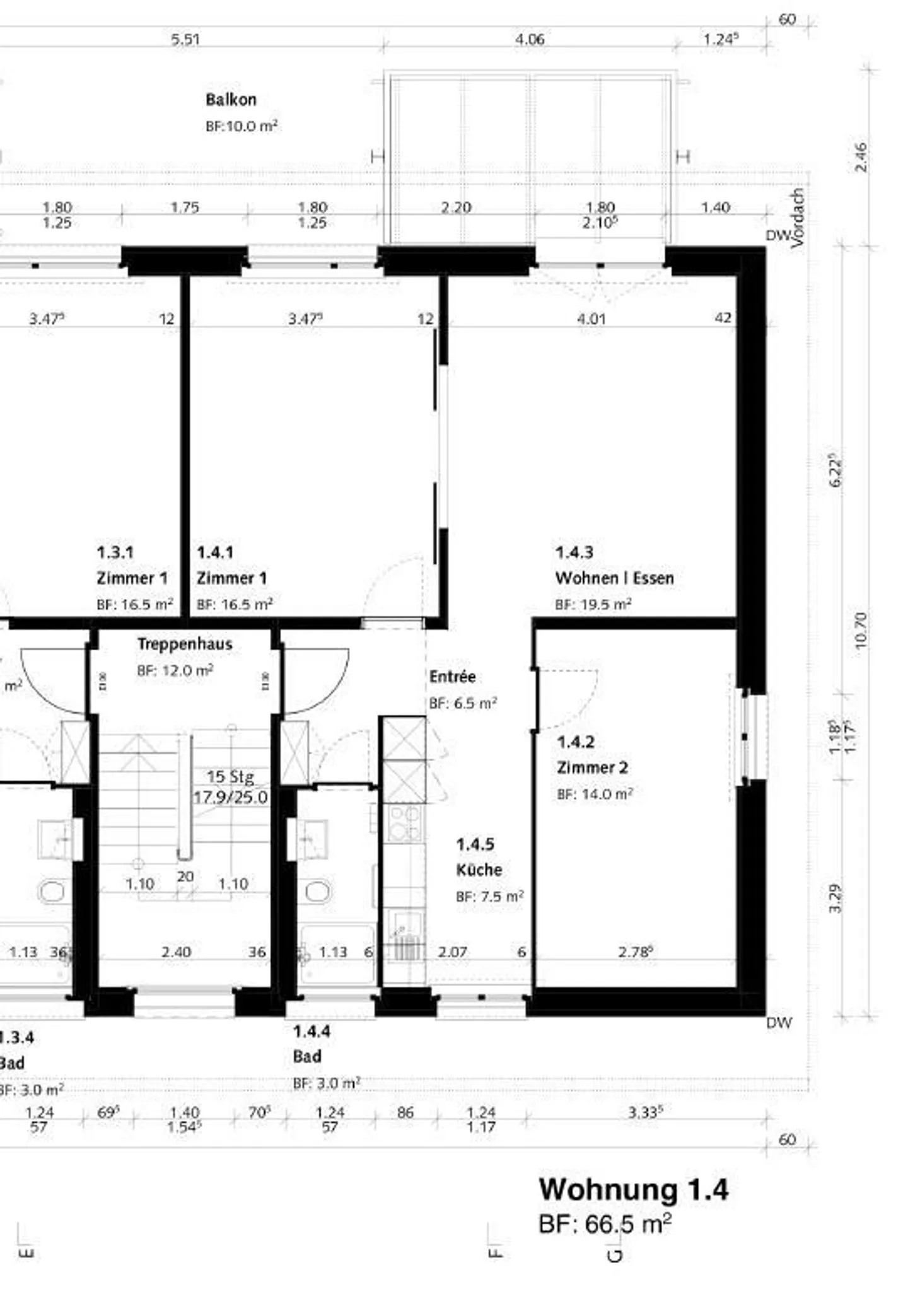
Prima locazione: appartamento moderno vicino a migros paradies
L'appartamento recentemente ristrutturato si trova in una tranquilla strada laterale, vicino al confine della città. I negozi, le fermate del tram e dell'autobus sono raggiungibili a piedi. L'area ricreativa <> è raggiungibile a piedi in breve tempo.
L'appartamento ha una pianta pratica e stanze luminose e spaziose. Tutti gli spazi abitativi e le camere da letto sono dotati di parquet in rovere di alta qualità. La cucina, il bagno e l'ingresso sono dotati di un pavimento in cemento gettato ...
Ripartizione dei costi
- Affitto netto
- CHF 1’840
- Costi aggiuntivi
- CHF 190
- Totale delle locazioni
- CHF 1’840
Dettagli immobile
- Disponibile dal
- Su accordo
- Stanze
- 3
- Anno di costruzione
- 2025
- Anno di ristrutturazione
- 2025
- Superficie abitabile
- 66 m²
- Piano
- 1°



