Appartamento in affitto - 2855 Glovelier
Perché amerai questa proprietà
Posizione privilegiata vicino all'autostrada
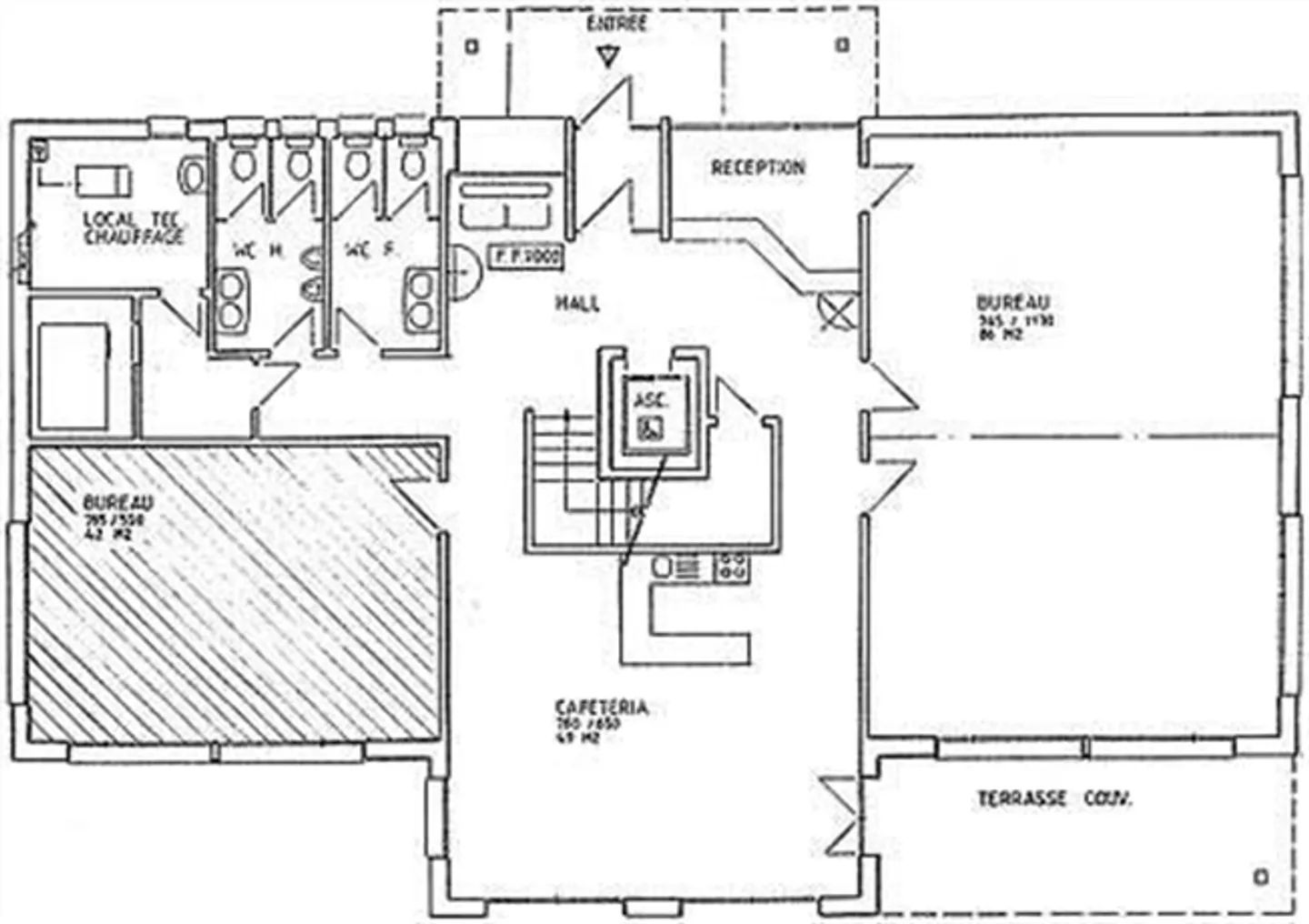
Accesso alla caffetteria
Spazi moderni e funzionali
Organizza una visita
Prenota una visita oggi!
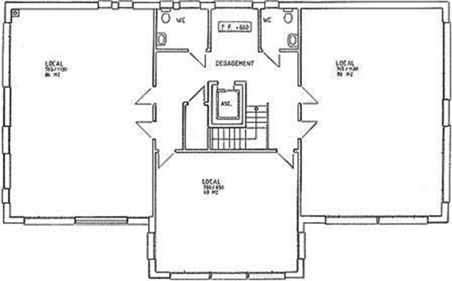
Locale commerciale di 120 m2 - a un passo dall'a16
Spazio commerciale di 120 m2 per uffici, servizi, ingegneri, tecnologia, orologeria, commercio, piccola industria (elettronica, sviluppo), medicina o assistenza sanitaria alternativa...
Nel centro del Giura, a 100 m dall'autostrada, a 10 minuti a piedi dalla stazione. Posizione ideale.
Accesso a spazi comuni (caffetteria) e a un parcheggio.
I tuoi vantaggi:
Un edificio moderno,
Parcheggio disponibile
Locali moderni e funzionali
Un luogo unico ed eccezionale
Costi di viaggio ridotti
Dipendenti mo...
Dettagli immobile
- Disponibile dal
- Su accordo
- Stanze
- 1



