Appartamento in affitto - Pestalozzistrasse 28, 9500 Wil SG
Perché amerai questa proprietà
Fascino storico e moderno
Ampio soggiorno con balcone
Ideale per pendolari a Zurigo
Organizza una visita
Prenota una visita con Nadine oggi!
Lavoro e Vita Combinati: Esclusivo Appartamento di 4.5 Stanze a Wil con Ufficio Aggiuntivo
Appartamento in affitto esclusivo di 5.5 stanze nel cuore di Wil SG
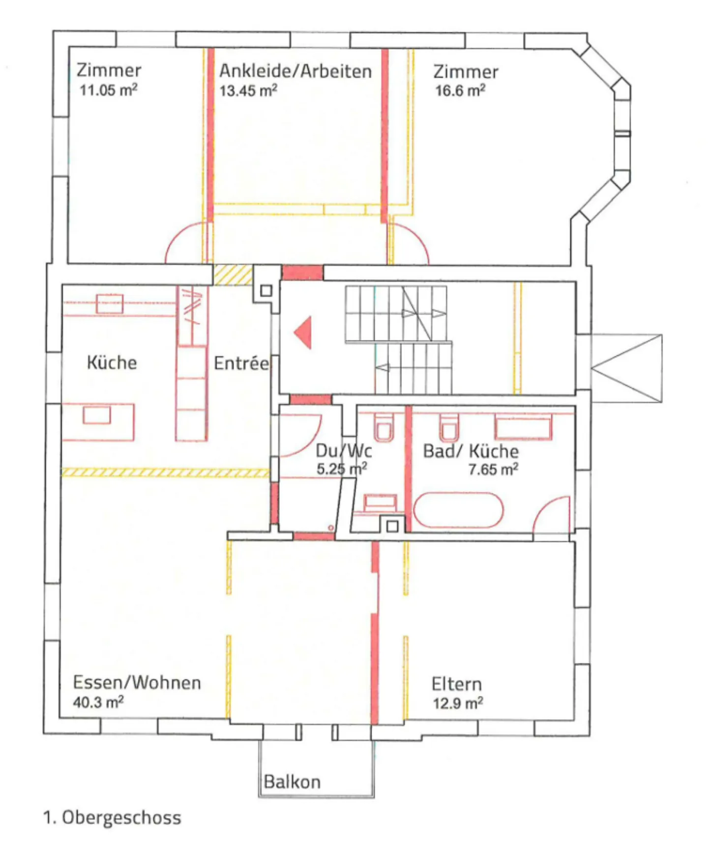
In un edificio storico che è stato amorevolmente ristrutturato, si trova questo unico appartamento di 5.5 stanze. L'edificio ospita soltanto quattro inquilini, garantendo privacy e tranquillità. L'appartamento si estende su tutto il primo piano, offrendo così un esclusivo senso di abitare.
Entrando nell'appartamento, si arriva in un luminoso ingresso con un pratico guardaroba e ampio spazio di stoccaggio. Direttamente all'ingresso...
Ripartizione dei costi
- Affitto netto
- CHF 2’290
- Costi aggiuntivi
- CHF 190
- Totale delle locazioni
- CHF 2’290
Dettagli immobile
- Disponibile dal
- 01.02.2026
- Stanze
- 5.5
- Anno di ristrutturazione
- 2024
- Superficie abitabile
- 107 m²
- Piano
- 1°
- Piani dell'edificio
- 1




