Appartamento in affitto - Avenue Bergières 28, 1004 Lausanne
Perché amerai questa proprietà
Cucina attrezzata
Terrazza soleggiata
Vicino ai trasporti pubblici
Organizza una visita
Prenota una visita con oggi!
SITUAZIONE
A soli 10 minuti in auto dalla stazione di Losanna, puoi facilmente raggiungere il centro città e godere di tutti i negozi e servizi. L'autostrada è accessibile in meno di 5 minuti di auto.
Per i tuoi acquisti quotidiani, un supermercato e una panetteria sono a pochi passi, e una farmacia e una banca si trovano a meno di 500 m. Per i tuoi bambini, un asilo nido è accessibile a circa 10 minuti a piedi.
Per quanto riguarda i trasporti pubblici, la fermata dell'autobus << Bergières &g...
Dettagli immobile
- Disponibile dal
- Su accordo
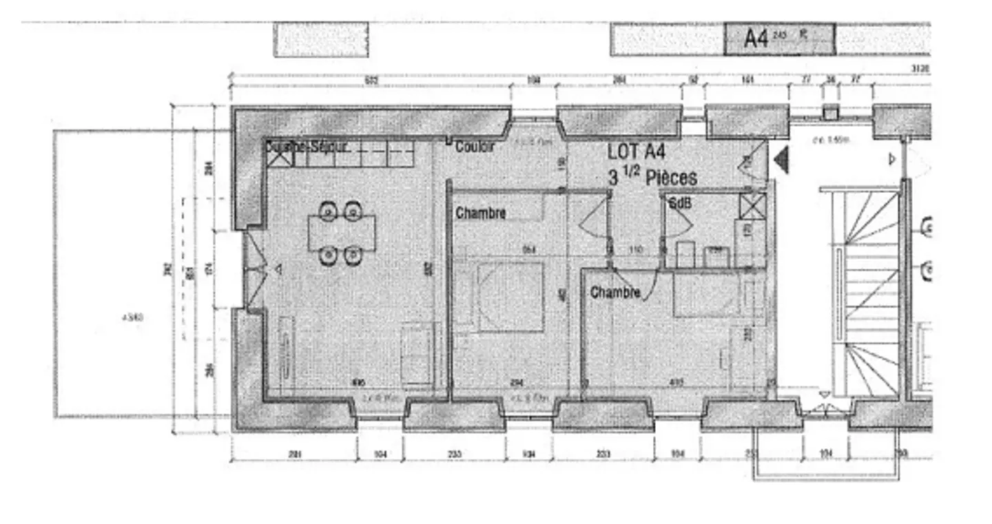
- Stanze
- 3.5
- Bagni
- 1
- Piano
- 1°


