Appartamento in affitto - Schürlirain 27, 3172 Niederwangen b. Bern
Perché amerai questa proprietà
Design cucina aperta
Luminoso e spazioso
Vicino ai trasporti pubblici
Organizza una visita
Prenota una visita con Isabelle oggi!
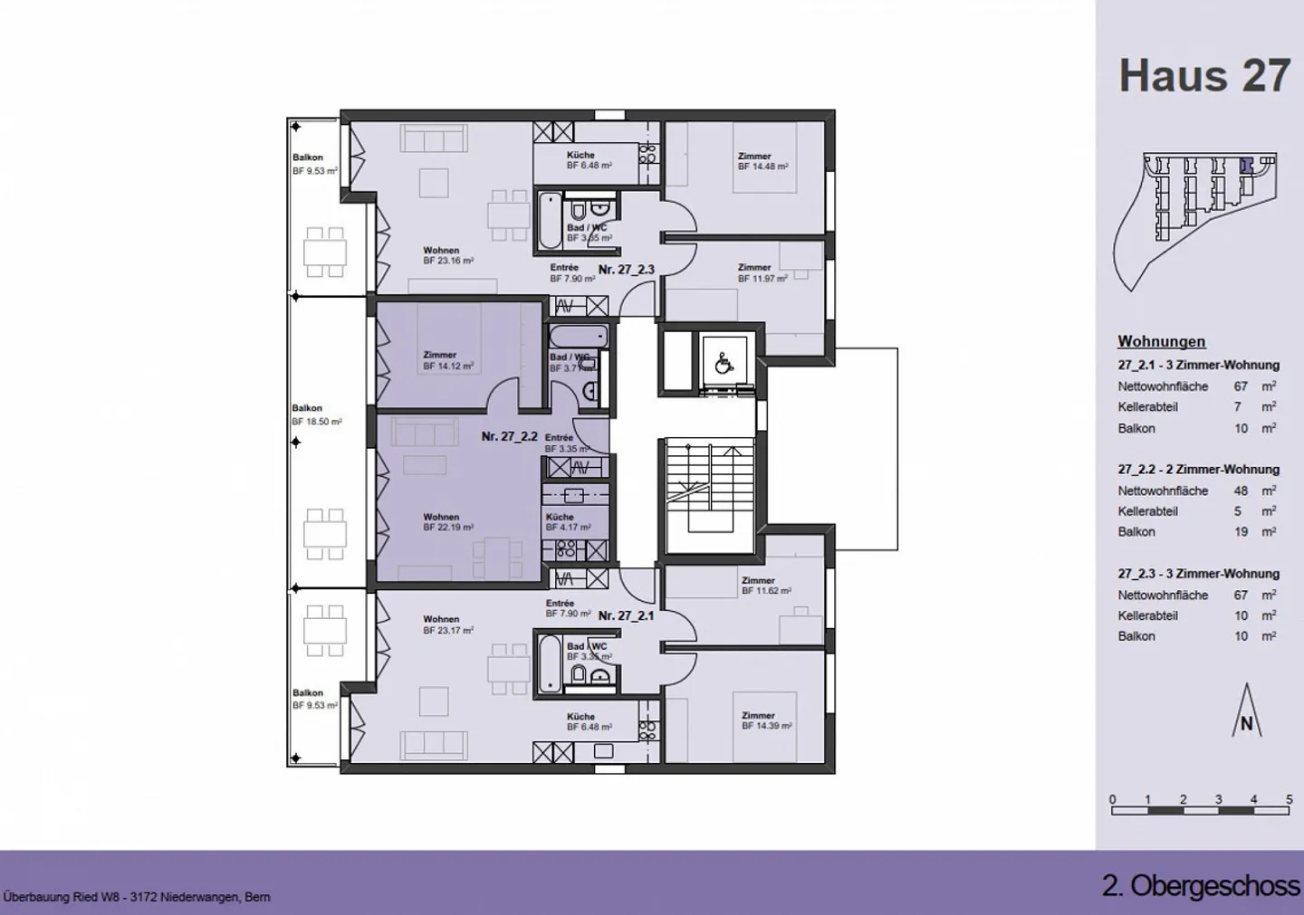
Appartamento 3 locali in edificio moderno
Proprio accanto al bosco di Könizberg, affittiamo a partire dal 1° marzo 2026 o per accordo un appartamento moderno e luminoso
3 locali al 2° piano a sinistra
L'appartamento offre quanto segue:
- Pavimenti in parquet e piastrelle
- Cucina aperta con piano cottura in vetroceramica e lavastoviglie
- Bagno con vasca da bagno
- Armadi a muro e guardaroba nell'ingresso
- Cantina
- Ascensore
- Riscaldamento a pavimento
Nelle vicinanze ci sono negozi, scuole e mezzi pubblici.
Un posto auto può essere affittato pe...
Ripartizione dei costi
- Affitto netto
- CHF 1’725
- Costi aggiuntivi
- CHF 250
- Totale delle locazioni
- CHF 1’725
Dettagli immobile
- Disponibile dal
- Su accordo
- Stanze
- 3
- Superficie abitabile
- 67 m²
- Piano
- 2°



