Appartamento in affitto - Sonnenring 26, 8590 Romanshorn
Perché amerai questa proprietà
Cucina aperta con lavastoviglie
Ampio balcone soleggiato
Vicino al Lago di Costanza
Organizza una visita
Prenota una visita con Martina oggi!
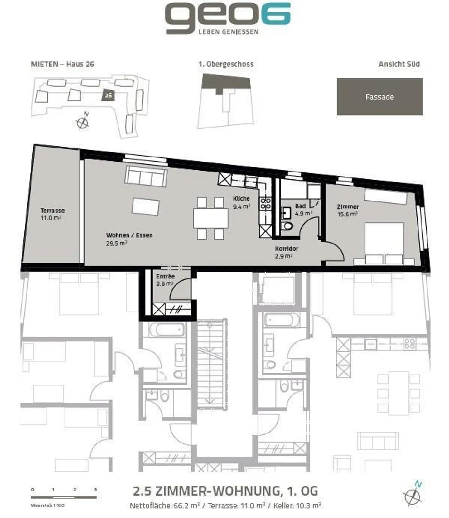
Benvenuto a casa - tranquillo, soleggiato e spazioso
Stai cercando un appartamento moderno in una posizione centrale eppure immerso nel verde? Allora sei nel posto giusto.
Questo appartamento attraente ti offre le seguenti comodità:
- cucina moderna e aperta con piano cottura in vetroceramica e lavastoviglie
- pavimento in parquet nel corridoio, cucina e soggiorno/camera da letto
- pavimento in piastrelle nei bagni
- bagno con doccia
- lavatrice e asciugatrice proprie nell'appartamento
- balcone soleggiato e spazioso
- grande cantina
Posto auto in garage...
Ripartizione dei costi
- Affitto netto
- CHF 1'537
- Costi aggiuntivi
- CHF 150
- Totale delle locazioni
- CHF 1'537
Dettagli immobile
- Disponibile dal
- Su accordo
- Stanze
- 2.5
- Anno di costruzione
- 2016
- Superficie abitabile
- 66 m²
- Piano
- 1°



