Appartamento in affitto - Rue Du Chêne 26, 1020 Renens VD
Perché amerai questa proprietà
Terrazza e giardino privati
Layout luminoso e spazioso
Lavanderie comuni
Organizza una visita
Prenota una visita oggi!
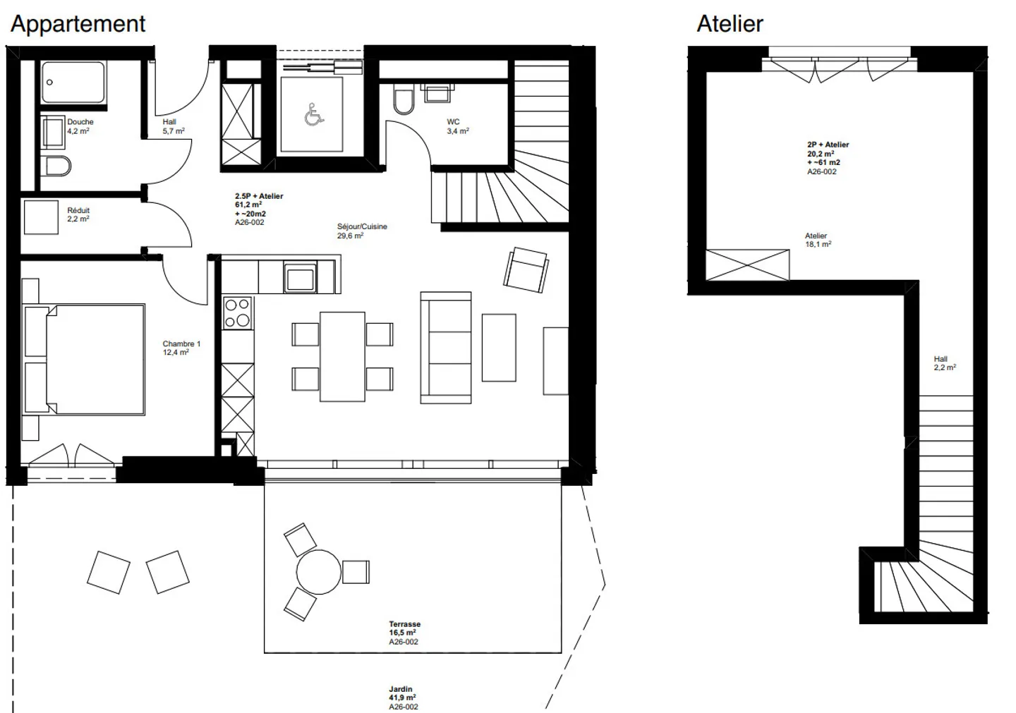
Nuovo appartamento 2.5 con laboratorio nel seminterrato - a26-002
2.5 nuova stanza
+ Laboratorio nel seminterrato di 20m2
+ Terrazza di 16m2 e giardino di 42m2
Consegna prevista a partire dalla primavera 2026
Scopri LES CHÊNES DE RENENS, un nuovo quartiere residenziale che offre 175 appartamenti nuovi in affitto, dallo studio accogliente al spazioso appartamento familiare 5.5, passando per duplex con laboratori privati e alloggi a prezzi accessibili. Qui, ogni stile di vita trova il suo posto!
Tutti gli appartamenti si distinguono per la loro generosa superficie, l...
Ripartizione dei costi
- Affitto netto
- CHF 2’470
- Costi aggiuntivi
- CHF 270
- Totale delle locazioni
- CHF 2’470
Dettagli immobile
- Disponibile dal
- 01.05.2025
- Stanze
- 3.5
- Anno di costruzione
- 2025
- Superficie abitabile
- 81 m²
- Piano
- Terra



