Appartamento in affitto - Tannenstrasse 25, 8200 Schaffhausen
Perché amerai questa proprietà
Cucina aperta spaziosa
Balcone con vista splendida
Natura e parchi nelle vicinanze
Organizza una visita
Prenota una visita con Melissa oggi!
Per cittadini e cercatori di pace
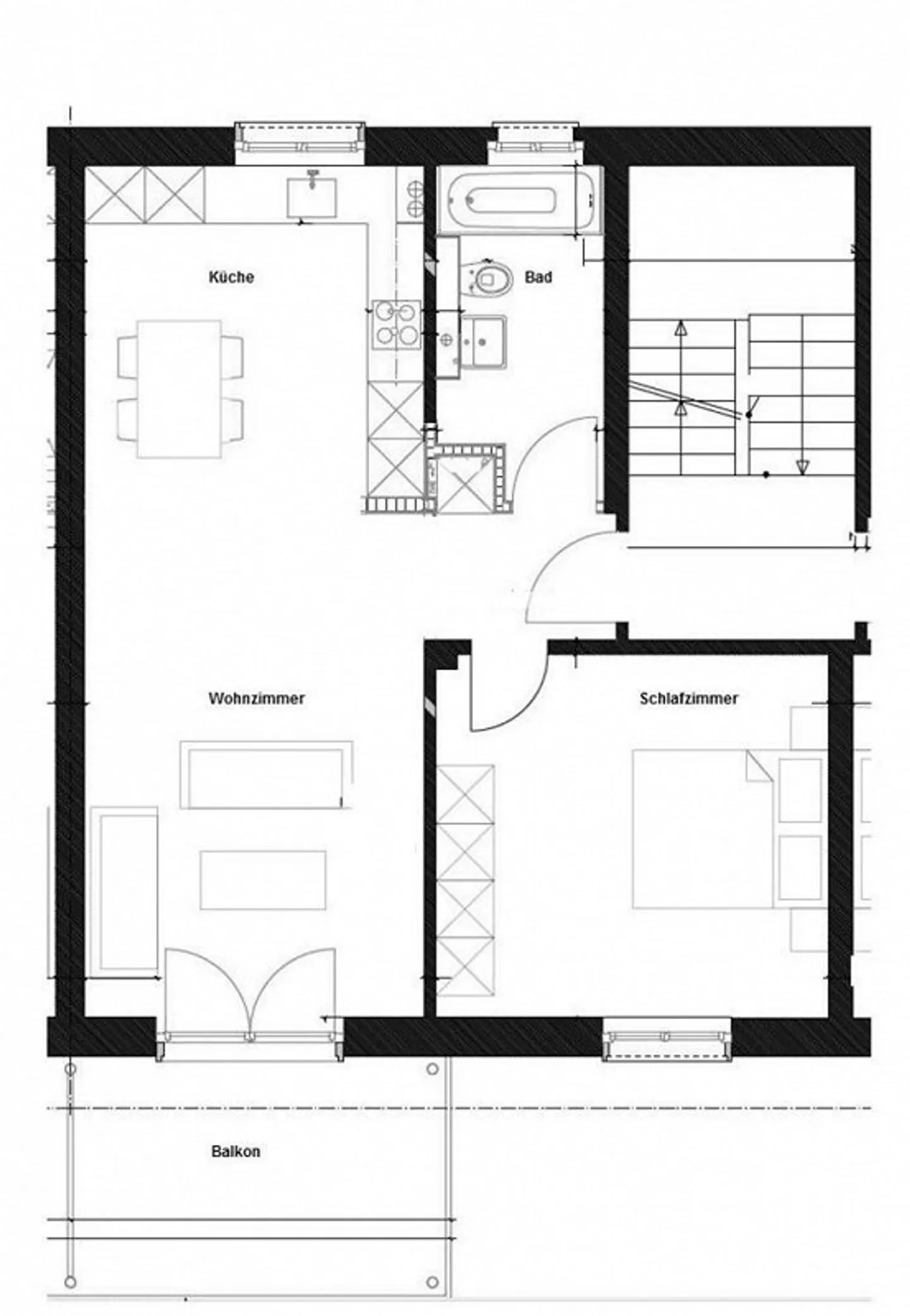
Stai cercando un'area residenziale tranquilla con un buon accesso alla città? Allora abbiamo proprio l'appartamento giusto per te. Il complesso Stimmer-/Tannenstrasse è stato ristrutturato nel 2017 e offre ai suoi nuovi residenti quanto segue:
- Ampia cucina abitabile aperta con forno alto, vetroceramica, grande frigorifero con congelatore separato
- Bagno con vasca e finestra
- Un attacco per la lavatrice è preparato nel bagno
- Soggiorno con pavimento in parquet
- Camera da letto con laminato
- Pres...
Ripartizione dei costi
- Affitto netto
- CHF 1’290
- Costi aggiuntivi
- CHF 240
- Totale delle locazioni
- CHF 1’290
Dettagli immobile
- Disponibile dal
- Su accordo
- Stanze
- 2
- Anno di costruzione
- 1938
- Anno di ristrutturazione
- 1977
- Superficie abitabile
- 56 m²
- Piano
- 1°



