Duplex in affitto - Im Heumoos 25, 8906 Bonstetten
Perché amerai questa proprietà
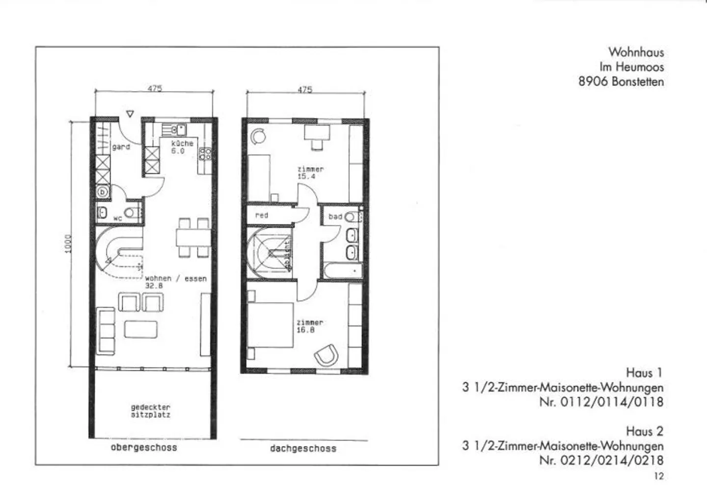
Layout spazioso
Terrazza coperta soleggiata
Attrezzature moderne in cucina
Organizza una visita
Prenota una visita oggi!
Per gli amanti delle maisonette
Affittiamo il bell'appartamento in maisonette nel cuore di Bonstetten a partire dal 16.06.2025 o su accordo.- Ampio piano- Tutte le stanze con parquet- Cucina con vetroceramica e lavastoviglie- Bagno con vasca e doppio lavabo- Toilette separata al piano inferiore- Guardaroba nell'area d'ingresso- Grande area di seduta coperta- 250 m dalla stazione ferroviaria- Posizione soleggiata e tranquilla- Il centro Coop consente di fare la spesa proprio davanti alla portaI posti auto possono essere affitta...
Ripartizione dei costi
- Affitto netto
- CHF 2’410
- Costi aggiuntivi
- CHF 320
- Totale delle locazioni
- CHF 2’410
Dettagli immobile
- Disponibile dal
- Su accordo
- Stanze
- 3.5
- Anno di costruzione
- 1995
- Piano
- 1°

