Attico in affitto - Hauptgasse 25, 4624 Härkingen
Perché amerai questa proprietà
Cucina aperta moderna
Posizione tranquilla con vista
Parco giochi per bambini
Organizza una visita
Prenota una visita con Herger oggi!
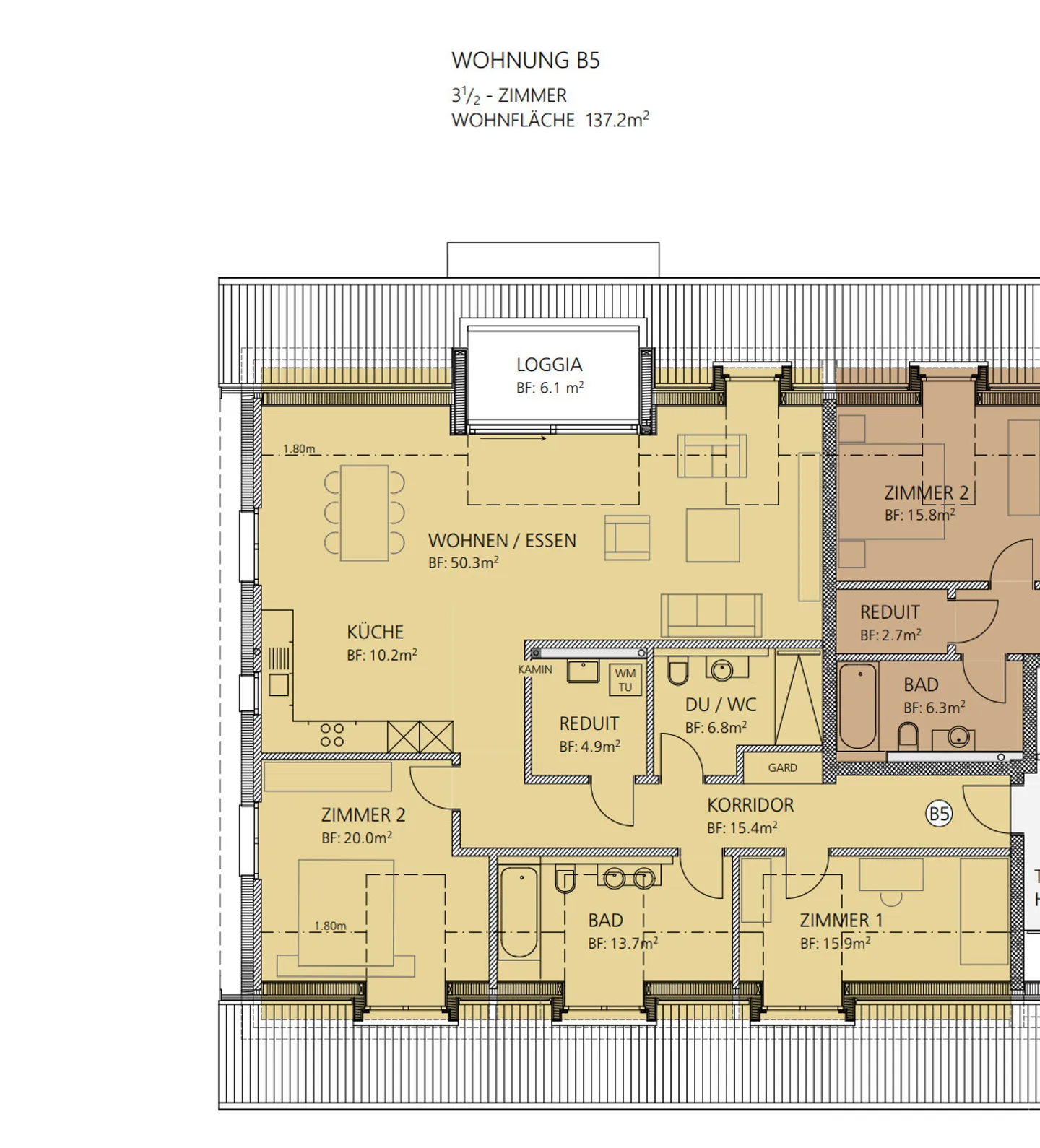
Vista libera, tanto spazio abitativo - Appartamento mansardato di 3,5 locali
Affittiamo questo appartamento mansardato di 3,5 locali con una generosa superficie abitabile di 137 m2, situato in Hauptgasse 25 a Härkingen in un complesso di nuova costruzione del 2017. La proprietà si trova dietro la casa n. 23, quindi protetta e lontana dalla trafficata strada principale, promettendo un'esperienza abitativa tranquilla. Dalla loggia, hai una vista libera e un ampio panorama su un'area agricola non coltivata - non potrebbe essere più idilliaco. L'appartamento si distingue per...
Ripartizione dei costi
- Affitto netto
- CHF 2’150
- Costi aggiuntivi
- CHF 300
- Totale delle locazioni
- CHF 2’150
Dettagli immobile
- Disponibile dal
- Su accordo
- Stanze
- 3.5
- Anno di costruzione
- 2017
- Superficie abitabile
- 137 m²
- Piano
- 2°



