1 / 11

Appartamento in affitto - Aarhaldenstrasse 24, 3052 Zollikofen

3.5 rooms • Piano terra
CHF 1’770.-
-

Perché amerai questa proprietà

Nuova cucina moderna

Bagno ristrutturato

Vicino ai trasporti pubblici

Organizza una visita

Prenota una visita oggi!

Niederer AG mobil in immobilien
Questa descrizione è stata tradotta automaticamente da Tedesco.

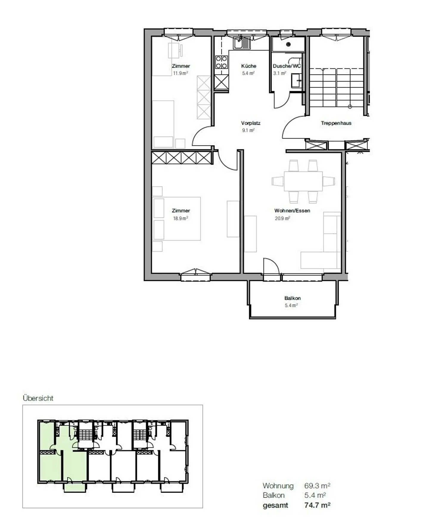
Appartamento 3.5 locali appena ristrutturato in posizione centrale a zollikofen

In una posizione privilegiata a Zollikofen, affittiamo questo appartamento 3.5 locali completamente ristrutturato immediatamente o su appuntamento, che colpisce per il suo design moderno e la sua disposizione intelligente.

La tua nuova casa ti offre:

•Nuova cucina moderna con piano cottura in vetroceramica

•Bagno completamente ristrutturato con doccia confortevole

•Elegante pavimento in parquet nelle aree soggiorno

•Pratici armadi a muro con molto spazio di stoccaggio

•Cantina e soffitta per ulteriore...

Dettagli immobile

Disponibile dal
Su accordo
Stanze
3.5
Anno di costruzione
1960
Piano
Terra

Caratteristiche

Giardino
Balcone
Tv via cavo
Animali ammessi

Agenzia

Niederer AG mobil in immobilien
Ref: 10240.1003

Località

Aarhaldenstrasse 24, 3052 Zollikofen

Fonti