Appartamento in affitto - Münsterplatz 22, 8200 Schaffhausen
Perché amerai questa proprietà
Terrazza spaziosa nel cortile
Unico mix di antico e moderno
Sauna privata all'ultimo piano
Organizza una visita
Prenota una visita oggi!
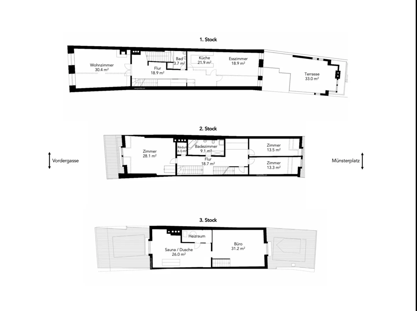
Ampio appartamento nel centro storico
In Vordergasse 35 affittiamo un bellissimo appartamento con una grande terrazza nel cortile.
La combinazione di elementi architettonici storici (stucchi, travi in legno, ecc.) e materiali e arredi moderni caratterizza questo appartamento. L'appartamento si estende su 3 piani con un totale di 5 stanze e una sauna privata all'ultimo piano.
L'appartamento è meravigliosamente adatto per famiglie o appartamenti condivisi in cerca di un appartamento centrale e spazioso nel centro storico.
Saremmo molto f...
Ripartizione dei costi
- Affitto netto
- CHF 2’900
- Costi aggiuntivi
- CHF 400
- Totale delle locazioni
- CHF 3’300
Dettagli immobile
- Disponibile dal
- 01.11.2025
- Stanze
- 6
- Superficie abitabile
- 217 m²




