Appartamento in affitto - Via San Nicolao 21, 6598 Tenero
Perché amerai questa proprietà
Cucina nuova con lavastoviglie
Balcone soleggiato per relax
Giardino comune con camino
Organizza una visita
Prenota una visita oggi!
4.5 locali rimodernato a tenero
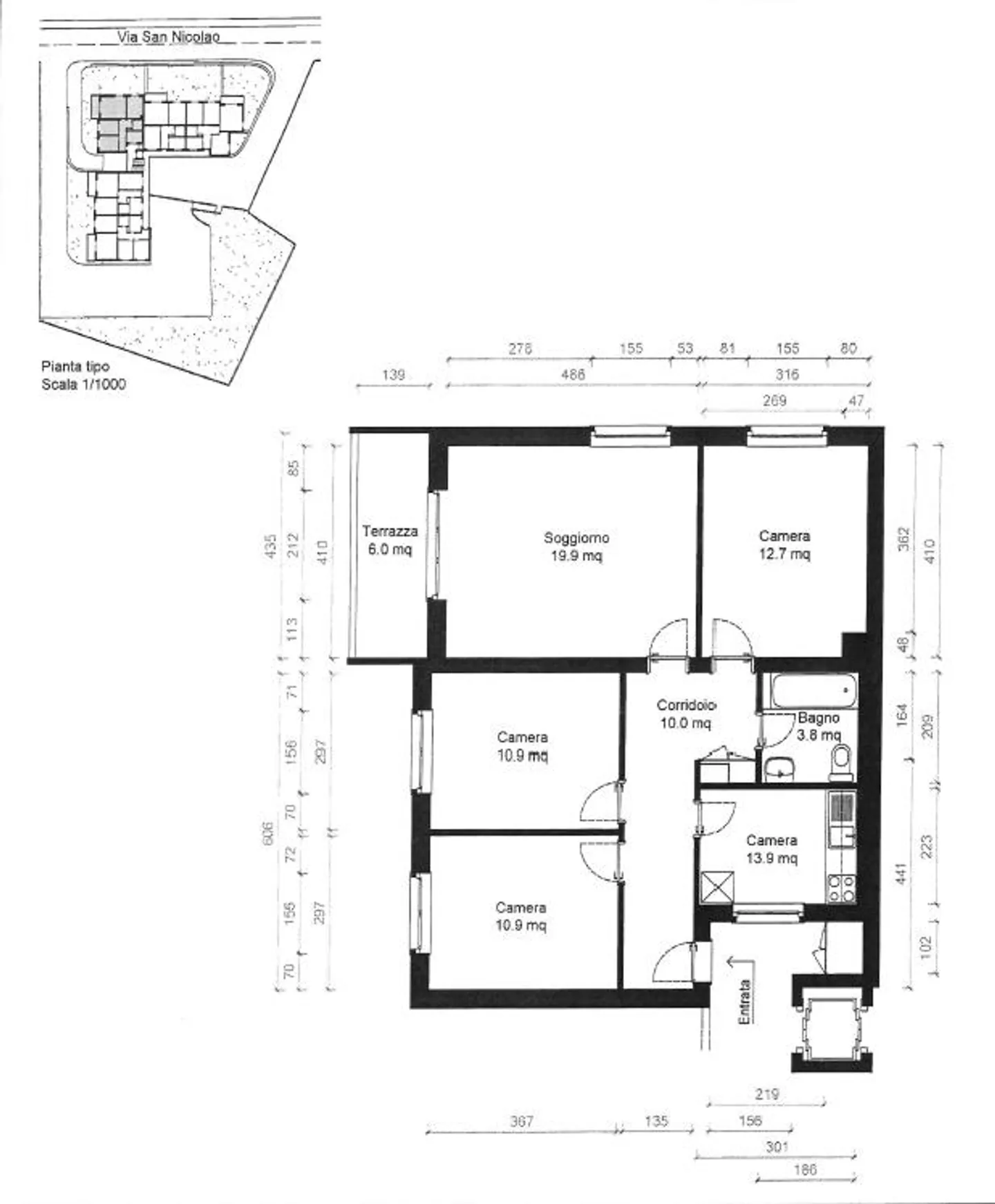
Affittasi appartamento di 4.5 locali completamente rimodernato, in un immobile con ascensore. in Via San Nicolao 21 a Tenero, in zona soleggiata e tranquilla.
Nelle vicinanze: stazione FFS, supermercato Coop e Migros, accesso semi-autostrada.
L'appartamento è così composto:
* Atrio/corridoio con comodo armadio a muro
* Cucina nuova, dotata di lavastoviglie
* Soggiorno con balcone (6 mq)
* Una camera matrimoniale
* 2 Camere
* Un bagno con vasca
Al piano interrato si trovano: lavanderia, cantina, loc...
Ripartizione dei costi
- Affitto netto
- CHF 1’530
- Costi aggiuntivi
- CHF 180
- Totale delle locazioni
- CHF 1’530
Dettagli immobile
- Disponibile dal
- 01.01.1970
- Stanze
- 4.5
- Superficie abitabile
- 82 m²
- Piano
- 1°




