Appartamento in affitto - Rue De Pain-Blanc 21, 2000 Neuchâtel
Perché amerai questa proprietà
Cucina e bagno ristrutturati
Balcone soleggiato per relax
Vicino ai mezzi pubblici
Organizza una visita
Prenota una visita con voir oggi!
Dove è bello vivere
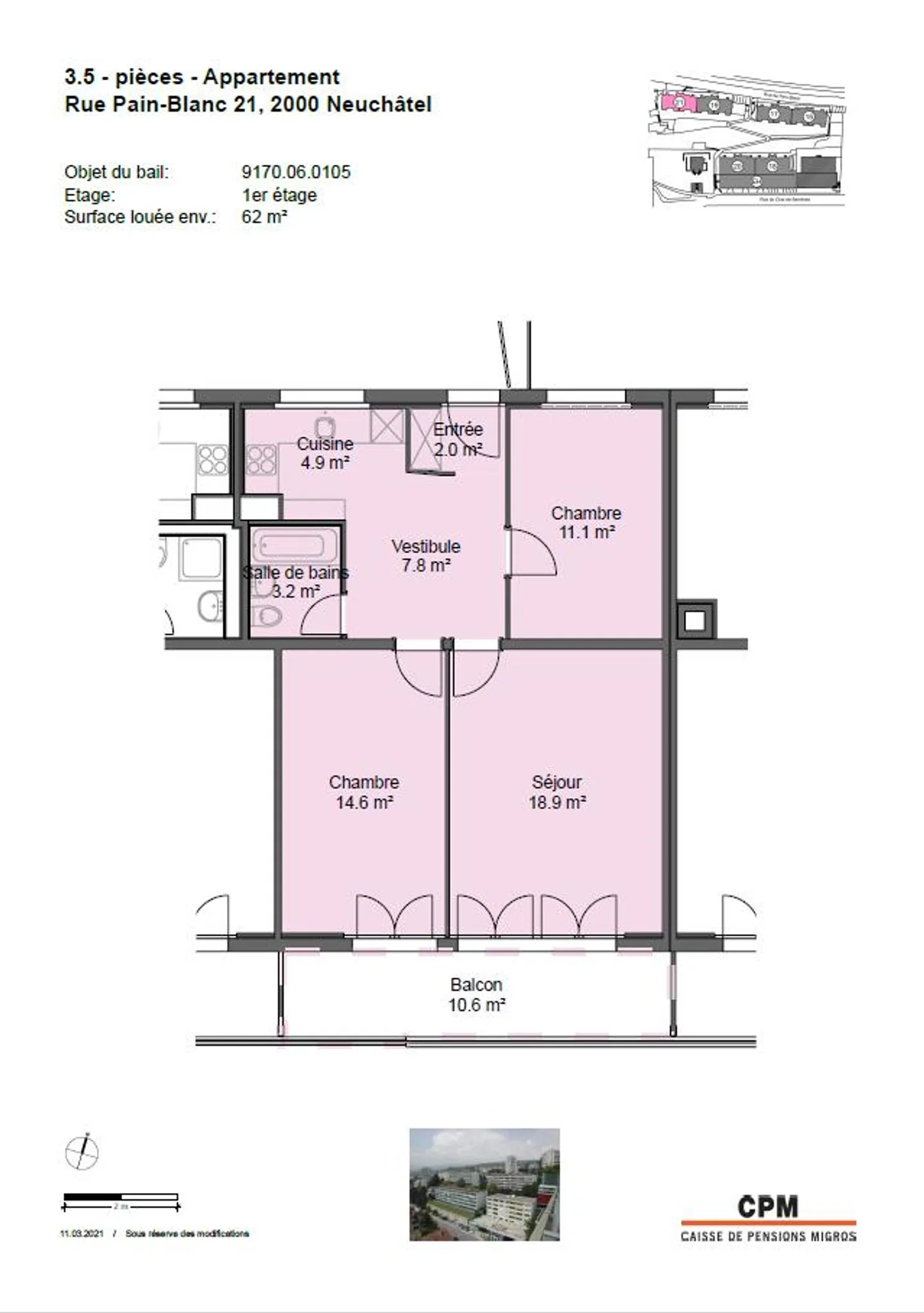
A 2 minuti a piedi dalla linea 102 e a 10 minuti a piedi dalla stazione ferroviaria di Neuchâtel-Serrière, in un edificio parzialmente ristrutturato nel 2008-2009, questo appartamento è composto da:
- Cucina
- Corridoio
- Bagno
- Soggiorno
- 2 Camere da letto
- Balcone
Interessato? Non vediamo l'ora di ricevere la tua candidatura inviata per posta.
- modulo di candidatura compilato correttamente
- Copia di un documento d'identità valido
- Certificato dell'ufficio delle esecuzioni
- Ultime 3 buste paga ...
Ripartizione dei costi
- Affitto netto
- CHF 1’470
- Costi aggiuntivi
- CHF 220
- Totale delle locazioni
- CHF 1’470
Dettagli immobile
- Disponibile dal
- 01.12.2025
- Stanze
- 3.5
- Anno di costruzione
- 1957
- Superficie abitabile
- 64 m²
- Piano
- 1°



