Attico in affitto - Route De Chamblioux 21, 1763 Granges-Paccot
Perché amerai questa proprietà
Ampia terrazza angolare di 87m2
Sistema di riscaldamento geotermico
Design architettonico contemporaneo
Organizza una visita
Prenota una visita oggi!
Attico 4.5 stanze
Attico 4.5 stanze nuovo di alta qualità
Nuovo progetto in arrivo a Granges-Paccot con alloggi progettati con cura per offrire spazi abitativi funzionali, luminosi e armoniosi.
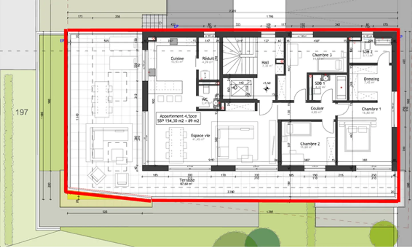
Descrizione Lotto n. 6:
✅ Ingresso con guardaroba
✅ Cucina aperta su ampio soggiorno di 41,4 m2
✅ 1 suite matrimoniale di 16,8 m2 con cabina armadio e bagno privato
✅ 2 camere da letto con armadio a muro
✅ Bagno con vasca + WC separato
✅ Lavanderia con torre di lavaggio
✅ Grande terrazza angolare di 87m2 / Esposizione Sud e Ovest
✅...
Ripartizione dei costi
- Affitto netto
- CHF 3’900
- Costi aggiuntivi
- CHF 400
- Totale delle locazioni
- CHF 3’900
Dettagli immobile
- Disponibile dal
- Su accordo
- Stanze
- 4.5
- Bagni
- 2
- Superficie abitabile
- 154 m²



