Appartamento in affitto - Route De Chamblioux 21, 1763 Granges-Paccot
Perché amerai questa proprietà
Architettura contemporanea
Pompa di calore geotermica
Pannelli fotovoltaici
Organizza una visita
Prenota una visita oggi!
Appartamento 2.5 locali
Nuovo progetto in arrivo a Granges-Paccot
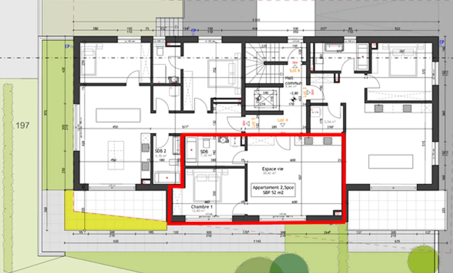
Lotto 4: Appartamento 2.5 locali di 52m2 al 1° piano
L'alloggio è stato progettato con cura per offrire spazi abitativi funzionali, luminosi e armoniosi.
✅ Cucina aperta su soggiorno di 28.3m2
✅ 1 camera da letto di 14.6m2
✅ Bagno
✅ Lavanderia con torre di lavaggio
✅ Balcone / Esposizione Sud
✅ Cantina
✨ Ciò che fa la differenza:
- Architettura contemporanea e finiture di qualità
- Volumi ottimizzati e spazi abitativi generosi
🌿 Una scelta sostenibile ed economi...
Ripartizione dei costi
- Affitto netto
- CHF 1’400
- Costi aggiuntivi
- CHF 150
- Totale delle locazioni
- CHF 1’400
Dettagli immobile
- Disponibile dal
- Su accordo
- Stanze
- 2.5
- Superficie abitabile
- 52 m²



