Appartamento in affitto - Dürrestrasse 21, 5314 Kleindöttingen
Organizza una visita
Prenota una visita con Michlig oggi!
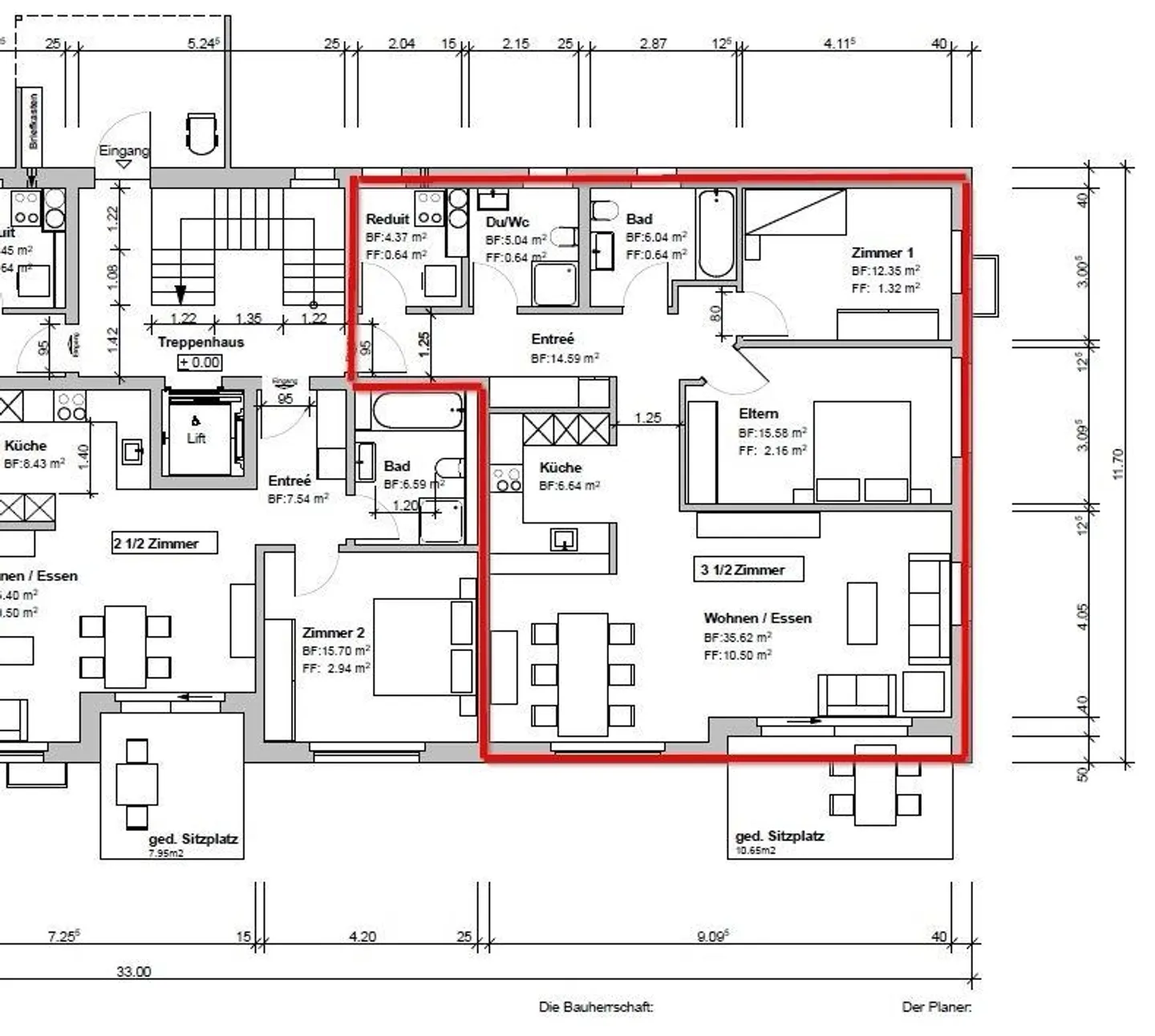
Moderne 3.5 Zimmerwohnung an ruhiger, zentraler Lage
Wir bieten eine moderne, zentral gelegene 3.5 Zimmerwohnung an ruhiger Lage in Kleindöttingen.
Die Wohnung hat eine moderne Küche mit Geschirrspüler, Glaskeramikherd und Backofen. Der Eichenparkettboden in den Schlafzimmern bietet ein wohliges Gefühl. Die zwei Nasszellen mit getrennter Dusche und Badewanne werden Sie begeistern und ein moderner Grundriss mit halboffener Küche sorgt für ein angehnemen Wohnklima. Die spezielle Wärmepumpe ist während den heissen Sommermonaten im Kühlbetrieb und sorg...
Ripartizione dei costi
- Affitto netto
- CHF 1'890
- Costi aggiuntivi
- CHF 200
- Totale delle locazioni
- CHF 1'890
Dettagli immobile
- Disponibile dal
- Su accordo
- Stanze
- 3.5
- Anno di costruzione
- 2022
- Superficie abitabile
- 101 m²
- Piano
- 1°
- Piani dell'edificio
- 4



