Appartamento in affitto - Zolliker Strasse 203e, 8008 Zürich
Perché amerai questa proprietà
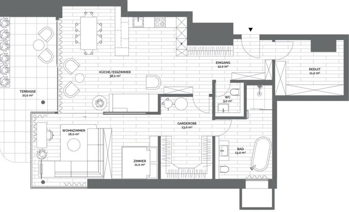
Ampia terrazza di 21 m²
Design moderno di Carosio
Parcheggio privato disponibile
Organizza una visita
Prenota una visita con Beran oggi!
Vivere esclusivo e a contatto con la natura!
Nel cuore del ricercato quartiere cittadino di Zurigo-Riesbach, alla fine del 2016 sono stati creati appartamenti in affitto esclusivi tra Zolliker e Südstrasse, circondati da potenti alberi su una dolce pendenza meridionale, in un complesso residenziale unico.
Il concetto di design dell'architetto rinomato Andres Carosio punta sulla semplicità moderna e sulla massima qualità costruttiva. Le eleganti case, che non sembrano affatto ostentate, si integrano armoniosamente nel paesaggio del parco. Ne...
Ripartizione dei costi
- Affitto netto
- CHF 4’950
- Costi aggiuntivi
- CHF 600
- Totale delle locazioni
- CHF 4’950
Dettagli immobile
- Disponibile dal
- Su accordo
- Stanze
- 2.5
- Piano
- Terra



