Appartamento in affitto - Untere Bahnhofstrasse 20, 9500 Wil SG
Perché amerai questa proprietà
Cucina spaziosa in granito
Bagno moderno
Balcone accogliente per rilassarsi
Organizza una visita
Prenota una visita con Lorena oggi!
Centrale!
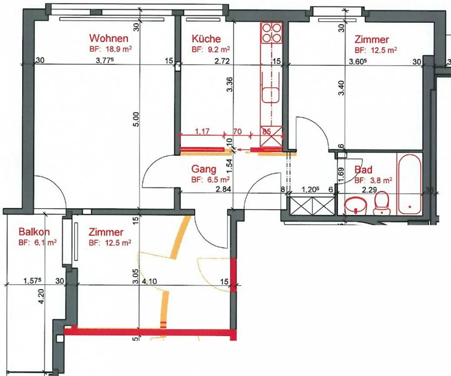
Questo appartamento di 3.0 stanze offre tra l'altro:
- grande cucina con lavastoviglie, piano cottura in ceramica, grande frigorifero e 3 cassetti congelatori separati, piano in granito
- bagno moderno
- pavimenti in piastrelle e parquet
- balcone accogliente
- a pochi minuti a piedi dalla stazione ferroviaria e dalla via dello shopping
- ascensore disponibile
- posto auto può essere affittato separatamente
Interessato? Non esitate a contattarci. Saremo felici di fissare un appuntamento per la visita co...
Ripartizione dei costi
- Affitto netto
- CHF 1’590
- Costi aggiuntivi
- CHF 170
- Totale delle locazioni
- CHF 1’590
Dettagli immobile
- Disponibile dal
- Su accordo
- Stanze
- 3
- Anno di costruzione
- 1960
- Superficie abitabile
- 63 m²
- Piano
- 1°
- Piani dell'edificio
- 1



