Loft in affitto - Schützenhölzlistrasse 20, 4303 Kaiseraugst
Perché amerai questa proprietà
Ideale per animali
Cucina moderna
Vicino alla natura
Organizza una visita
Prenota una visita con Eglin oggi!
Ampio appartamento loft a contatto con la natura per proprietari di (molti) cani o cavalli
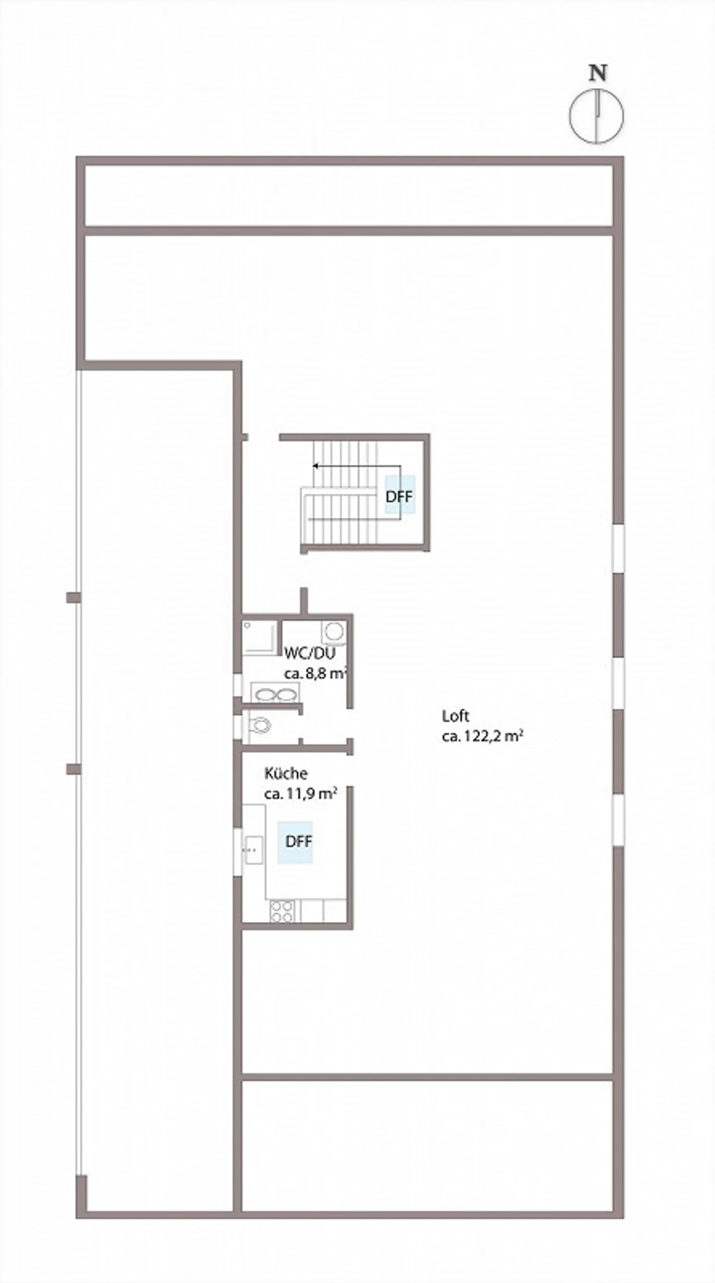
Questo ampio appartamento loft in mansarda, di circa 122 m2 di superficie abitabile netta, si trova vicino alla sala sportiva per cani e alle strutture equestri Challeren, in Schützenhölzlistrasse 20 a Kaiseraugst, a pochi minuti a piedi dalla foresta. È quindi idealmente adatto a persone che possiedono cani o cavalli.
Oltre a un'ampia zona giorno, troverete un bagno/WC moderno con doccia a livello del pavimento e una torre di lavaggio con WM/TU. La cucina è generosamente e modernamente attrezzat...
Ripartizione dei costi
- Affitto netto
- CHF 1’800
- Costi aggiuntivi
- CHF 200
- Totale delle locazioni
- CHF 1’800
Dettagli immobile
- Disponibile dal
- Su accordo
- Stanze
- 1
- Superficie abitabile
- 122 m²
- Piano
- 2°
- Piani dell'edificio
- 3



