Appartamento in affitto - Moosstrasse 20, 9030 Abtwil SG
Perché amerai questa proprietà
Ampio balcone di 10 m²
Cucina moderna con elettrodomestici
Parco giochi e spazio verde
Organizza una visita
Prenota una visita con Patricia oggi!
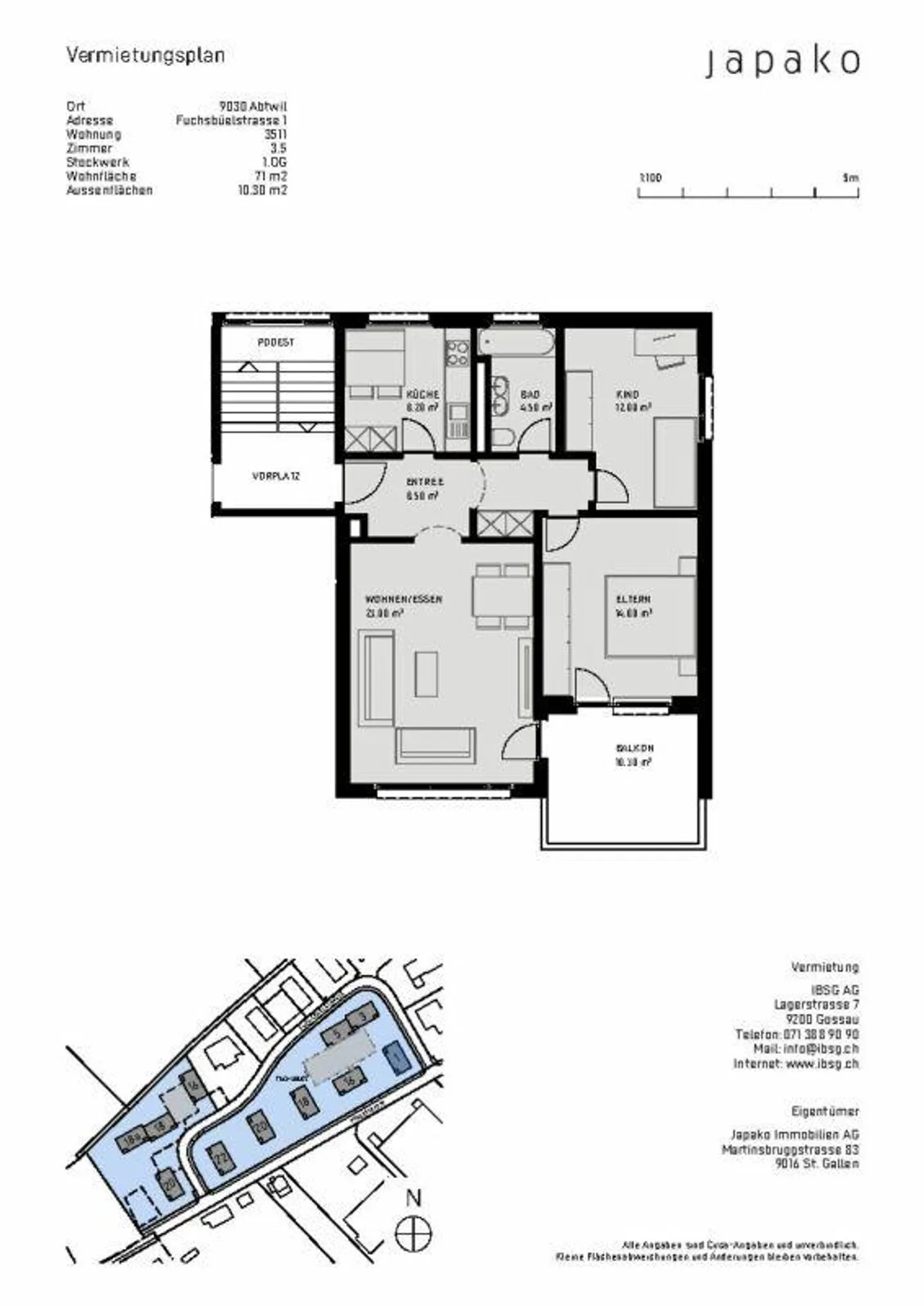
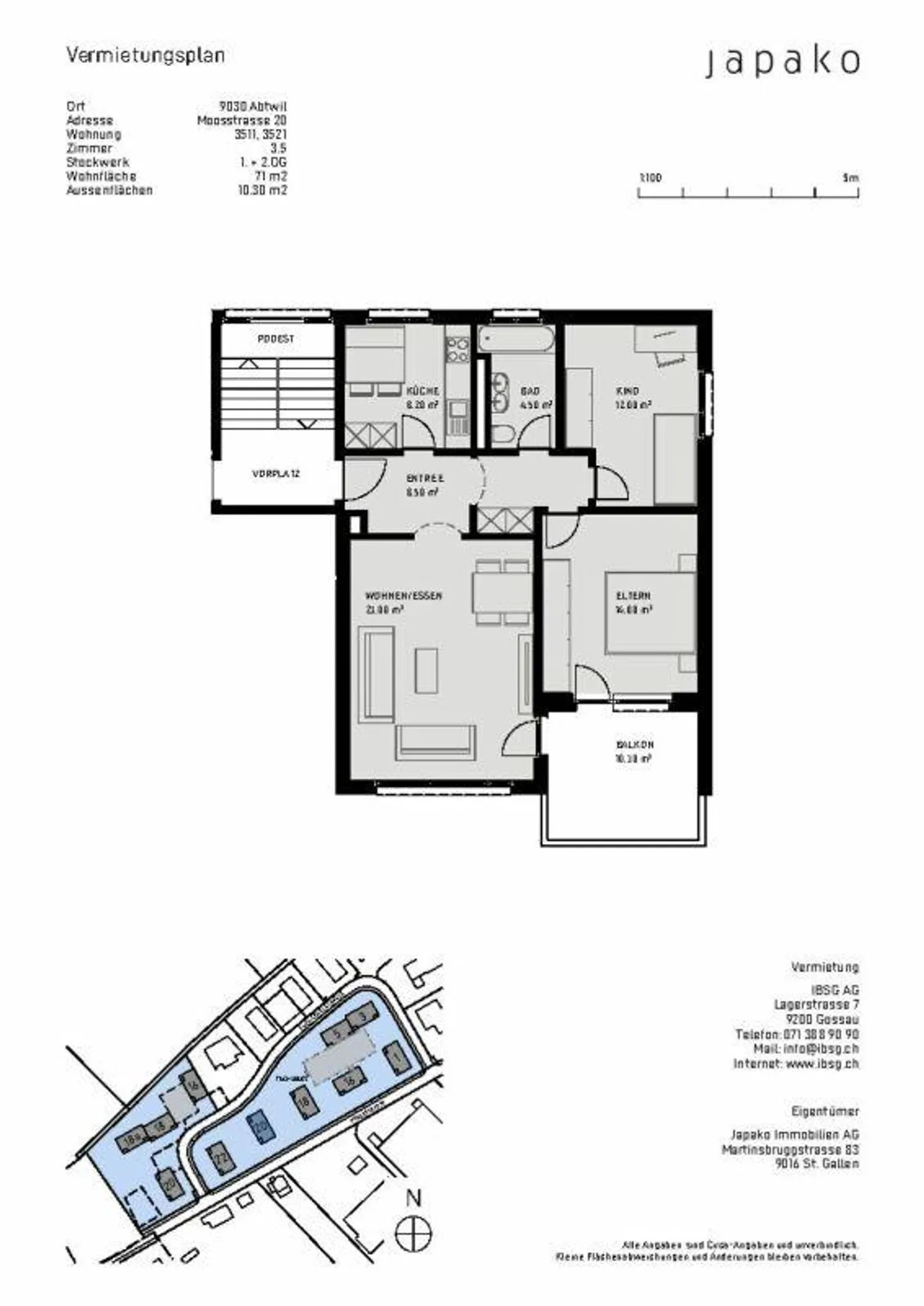
Appartamento affascinante 3.5 stanze in una posizione tranquilla
Questo bell'appartamento di 3.5 stanze si trova al 1° piano in Moosstrasse 20 ad Abtwil. 71 m2 invitano a vivere e godere.
Beneficia dei seguenti vantaggi di questo appartamento:
* Cucina con piano cottura in vetroceramica, forno, lavastoviglie, frigorifero con congelatore separato
* Bagno con vasca, wc, doppio lavabo e finestra
* Accesso al balcone di 10 m2 tramite soggiorno e camere da letto
* Armadio a muro e guardaroba nel corridoio
* Laminato luminoso nel corridoio, soggiorno e camere da letto
* P...
Ripartizione dei costi
- Affitto netto
- CHF 1’580
- Costi aggiuntivi
- CHF 290
- Totale delle locazioni
- CHF 1’580
Dettagli immobile
- Disponibile dal
- 01.03.2026
- Stanze
- 3.5
- Superficie abitabile
- 71 m²
- Piano
- 1°



