Appartamento in affitto - Krüzgass 20, 7306 Fläsch
Perché amerai questa proprietà
Loggia soleggiata
Bagno moderno
Garage disponibile
Organizza una visita
Prenota una visita oggi!
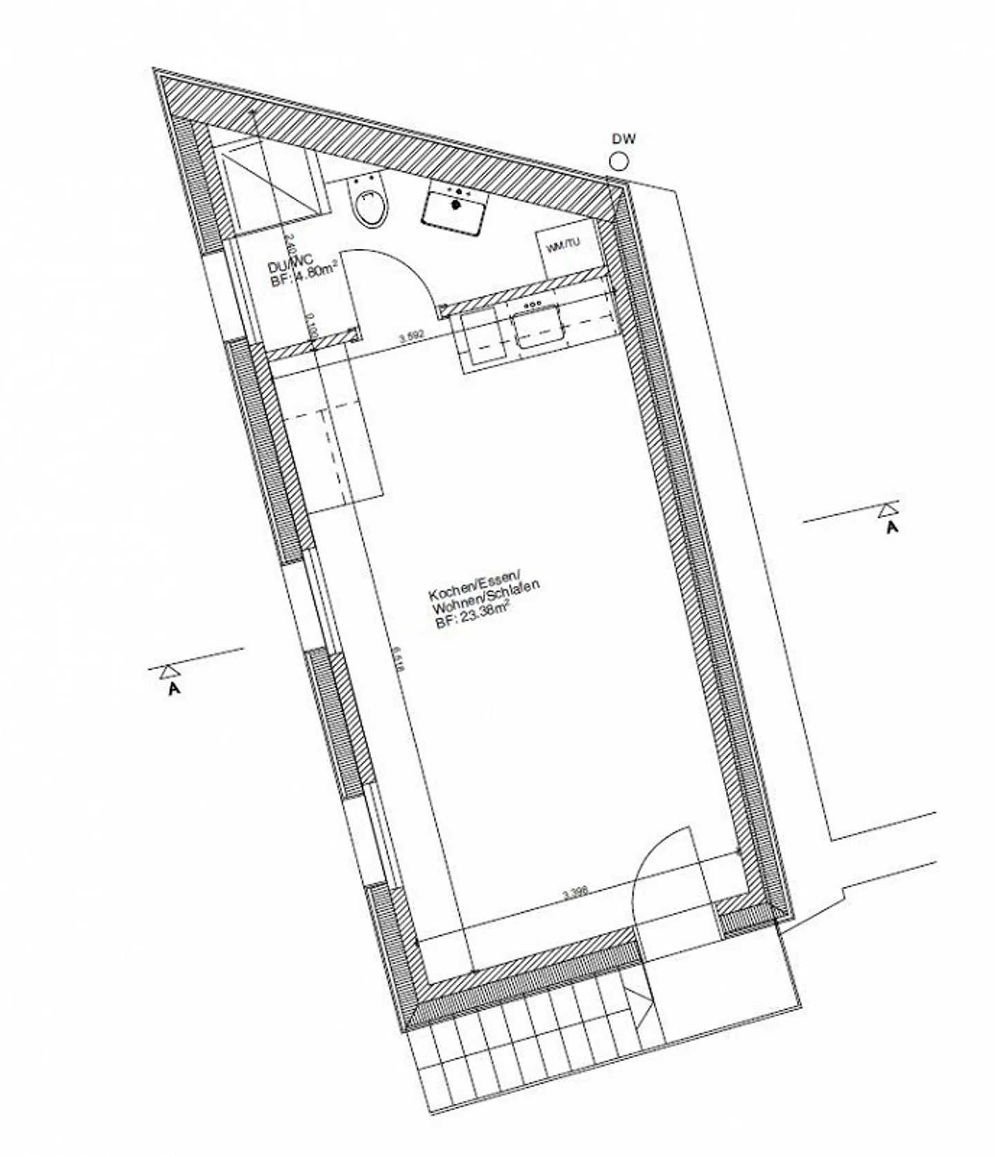
Appartamento studio 1,5 camere in una posizione da sogno
A partire dal 16 dicembre 2025 o su accordo, affittiamo un moderno studio di 1,5 stanze al 1° piano in Krüzgass 20 a Fläsch.
L'appartamento si distingue per le seguenti caratteristiche:
-
Pavimento in piastrelle e pareti nel bagno
-
Lavatrice e asciugatrice proprie
-
Pavimento in vinile effetto legno
-
Cucina spaziosa e moderna con piano cottura a induzione
Un posto auto esterno può essere affittato per CHF 60.00/mese.
Il nostro interesse è stato suscitato? Allora non vediamo l'ora di sentirti.
Ripartizione dei costi
- Affitto netto
- CHF 950
- Costi aggiuntivi
- CHF 100
- Totale delle locazioni
- CHF 950
Dettagli immobile
- Disponibile dal
- Su accordo
- Stanze
- 1.5
- Anno di costruzione
- 2025
- Superficie abitabile
- 28 m²
- Piano
- 1°
- Piani dell'edificio
- 1



