Attico in affitto - Wolhuserstrasse 2, 6112 Doppleschwand
Perché amerai questa proprietà
Aree living luminose e spaziose
Cucina aperta di alta qualità
Loggia panoramica tranquilla
Organizza una visita
Prenota una visita con Westphal oggi!
Vivere in modo paradisiaco e idilliaco in uno standard di proprietà
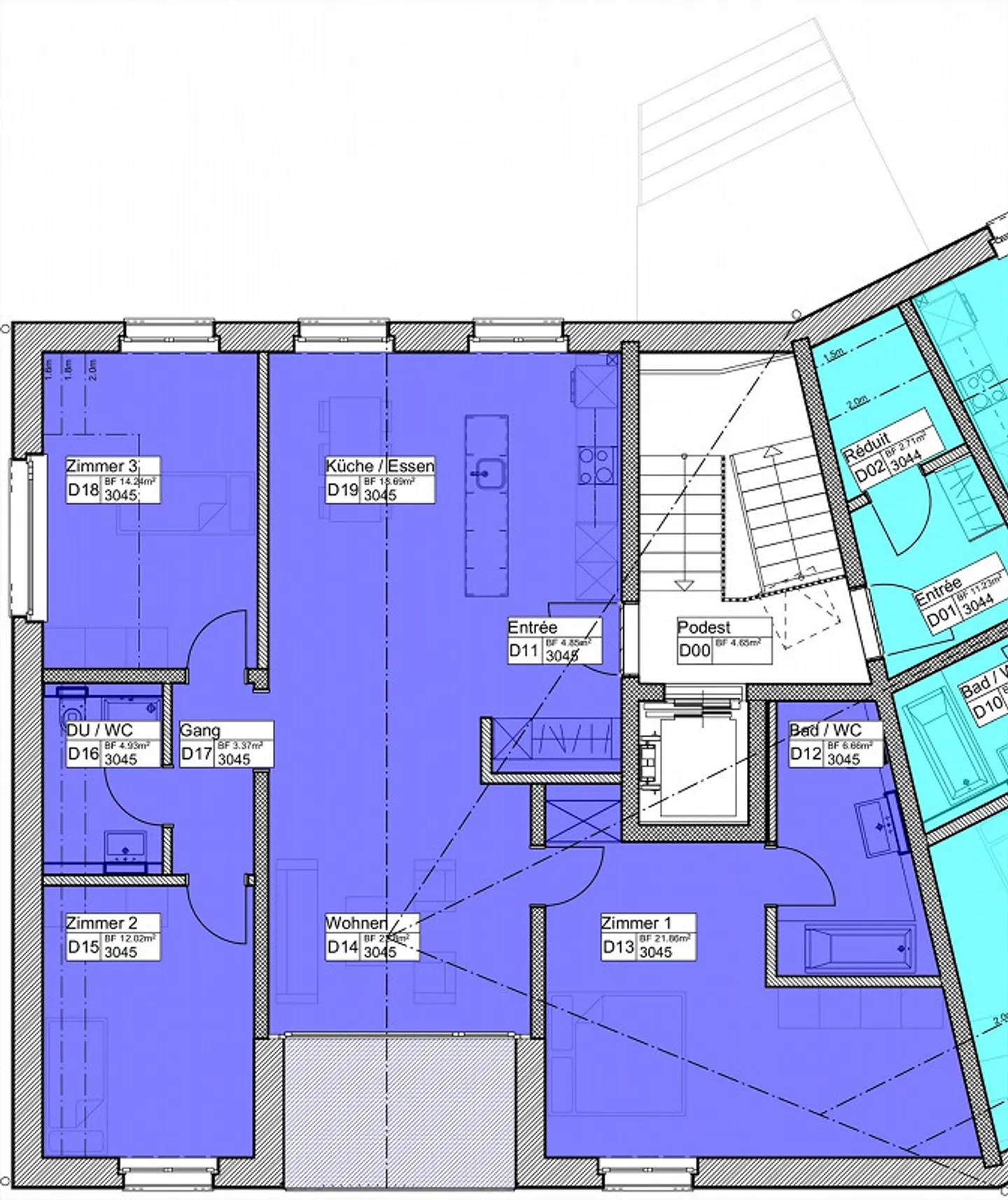
Vivere come in una casa unifamiliare - spazioso appartamento di 4,5 stanze con vista panoramica!
Ideale per gli amanti della natura. Trova pace e qualità della vita lontano dalla città.
- Stanze luminose e alte
- Cucina abitabile aperta di alta qualità con vetro ceramico, lavastoviglie e molto spazio di stoccaggio
- Loggia lontana dalla strada con vista panoramica
- Pavimenti in rovere oliato
- 2 bagni moderni. Uno con doccia a livello del pavimento e WC. Uno con vasca e WC
- Armadi a muro nell'ingress...
Ripartizione dei costi
- Affitto netto
- CHF 2’250
- Costi aggiuntivi
- CHF 250
- Totale delle locazioni
- CHF 2’250
Dettagli immobile
- Disponibile dal
- Su accordo
- Stanze
- 4.5
- Anno di costruzione
- 2017
- Superficie abitabile
- 109.4 m²
- Piano
- 9°
- Piani dell'edificio
- 3



