Attico in affitto - Sonnenweg 2, 9466 Sennwald
Perché amerai questa proprietà
Terrazza spaziosa per rilassarsi
Cucina moderna con elettrodomestici nuovi
Ampio soggiorno con grandi finestre
Organizza una visita
Prenota una visita con Dirk oggi!
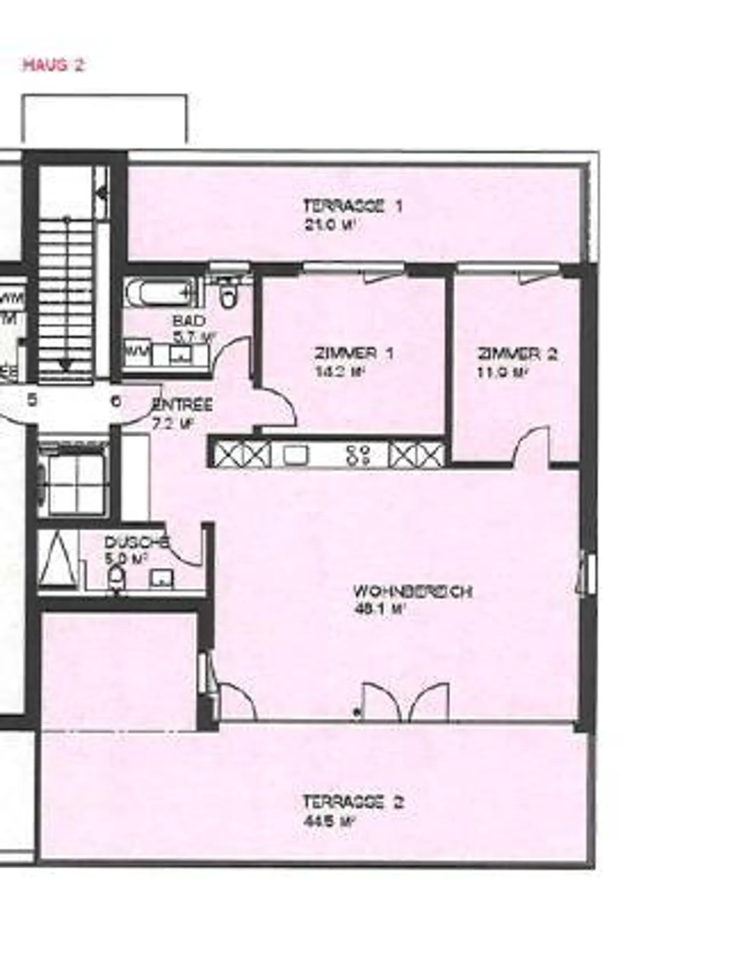
Appartamento con vista fantastica a sennwald
Vivi una sensazione abitativa unica in questo elegante e moderno appartamento di 3,5 stanze con una spaziosa terrazza che si affaccia sull'immensità! Questo appartamento progettato con cura impressiona per il suo layout sofisticato, materiali di alta qualità e un'atmosfera costantemente luminosa e accogliente. Aspettati una casa che combina comfort moderno con esigenze estetiche e ti offre i seguenti punti salienti:
- Cucina aperta e moderna: La cucina elegante è dotata di elettrodomestici quasi ...
Ripartizione dei costi
- Affitto netto
- CHF 2’270
- Costi aggiuntivi
- CHF 330
- Totale delle locazioni
- CHF 2’270
Dettagli immobile
- Disponibile dal
- Su accordo
- Stanze
- 3.5
- Piano
- 2°



