Appartamento in affitto - Rehetobelstrasse 2, 9000 St. Gallen
Perché amerai questa proprietà
Ampio balcone soleggiato
Cucina moderna con ceramica
Vicino ai mezzi pubblici
Organizza una visita
Prenota una visita con Timon oggi!
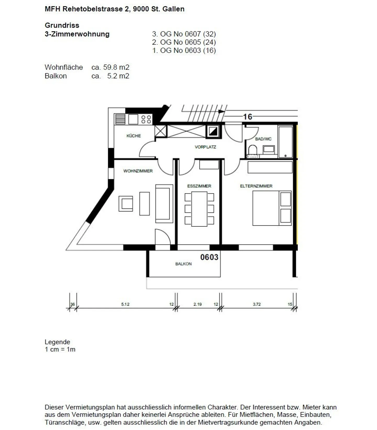
Appartamento elegante 3.5 locali in posizione urbana
Affittiamo questo spazioso appartamento di 3.5 locali in Rehetobelstrasse 2 a San Gallo dal 01.02.2026 o su accordo.
L'appartamento spazioso è dotato dei seguenti vantaggi:
- cucina accogliente con piano cottura in vetroceramica
- zona giorno e notte con pavimenti in laminato
- armadio a muro nell'area d'ingresso
- balcone soleggiato
- ascensore
- cantina
Il centro città, i mezzi pubblici e i negozi sono raggiungibili in pochi minuti. Un collegamento autostradale si trova direttamente presso la propri...
Ripartizione dei costi
- Affitto netto
- CHF 1’325
- Costi aggiuntivi
- CHF 295
- Totale delle locazioni
- CHF 1’325
Dettagli immobile
- Disponibile dal
- 01.12.2025
- Stanze
- 3
- Superficie abitabile
- 60 m²
- Piano
- 3°



