Appartamento in affitto - Pfauengasse 2, 5330 Bad Zurzach
Perché amerai questa proprietà
Cucina moderna con lavastoviglie
Sistema di riscaldamento ecologico
Vicino a negozi e trasporti
Organizza una visita
Prenota una visita con Christina oggi!
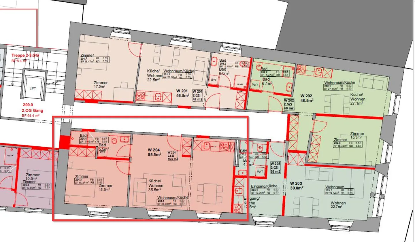
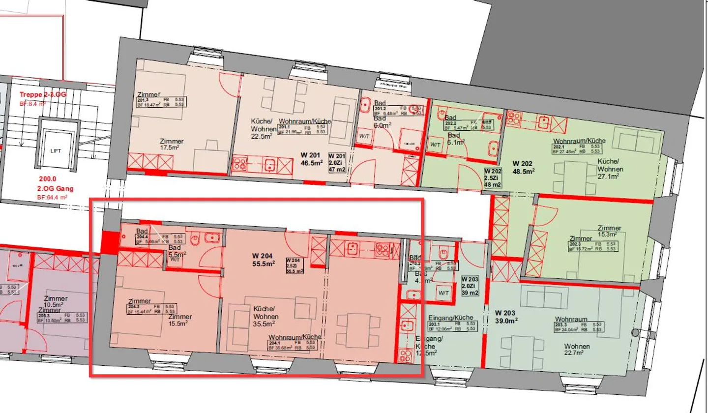
Bellissimo appartamento arredato di 2,5 stanze nel cuore di Zurzach
Vi offriamo un gioiello nel bellissimo Bad Zurzach.
L'appartamento completamente arredato e attrezzato dispone di una cucina moderna con lavastoviglie, piano cottura in vetroceramica e forno. Il pavimento in parquet di rovere nel soggiorno e nella camera da letto offre un'atmosfera abitativa piacevole. La spaziosa doccia con porta a doppio battente nel bagno ampio vi impressionerà. Qui troverete anche la torre di lavaggio dell'appartamento.
L'appartamento è riscaldato con riscaldamento urbano ecol...
Ripartizione dei costi
- Affitto netto
- CHF 1’550
- Costi aggiuntivi
- CHF 170
- Totale delle locazioni
- CHF 1’550
Dettagli immobile
- Disponibile dal
- Su accordo
- Stanze
- 2.5
- Superficie abitabile
- 35 m²
- Piani dell'edificio
- 4



