Appartamento in affitto - Oberdorfstrasse 2, 5107 Schinznach Dorf
Perché amerai questa proprietà
Stufa svedese accogliente
Balcone con vista tramonto
Cucina moderna con granito
Organizza una visita
Prenota una visita con Montag oggi!
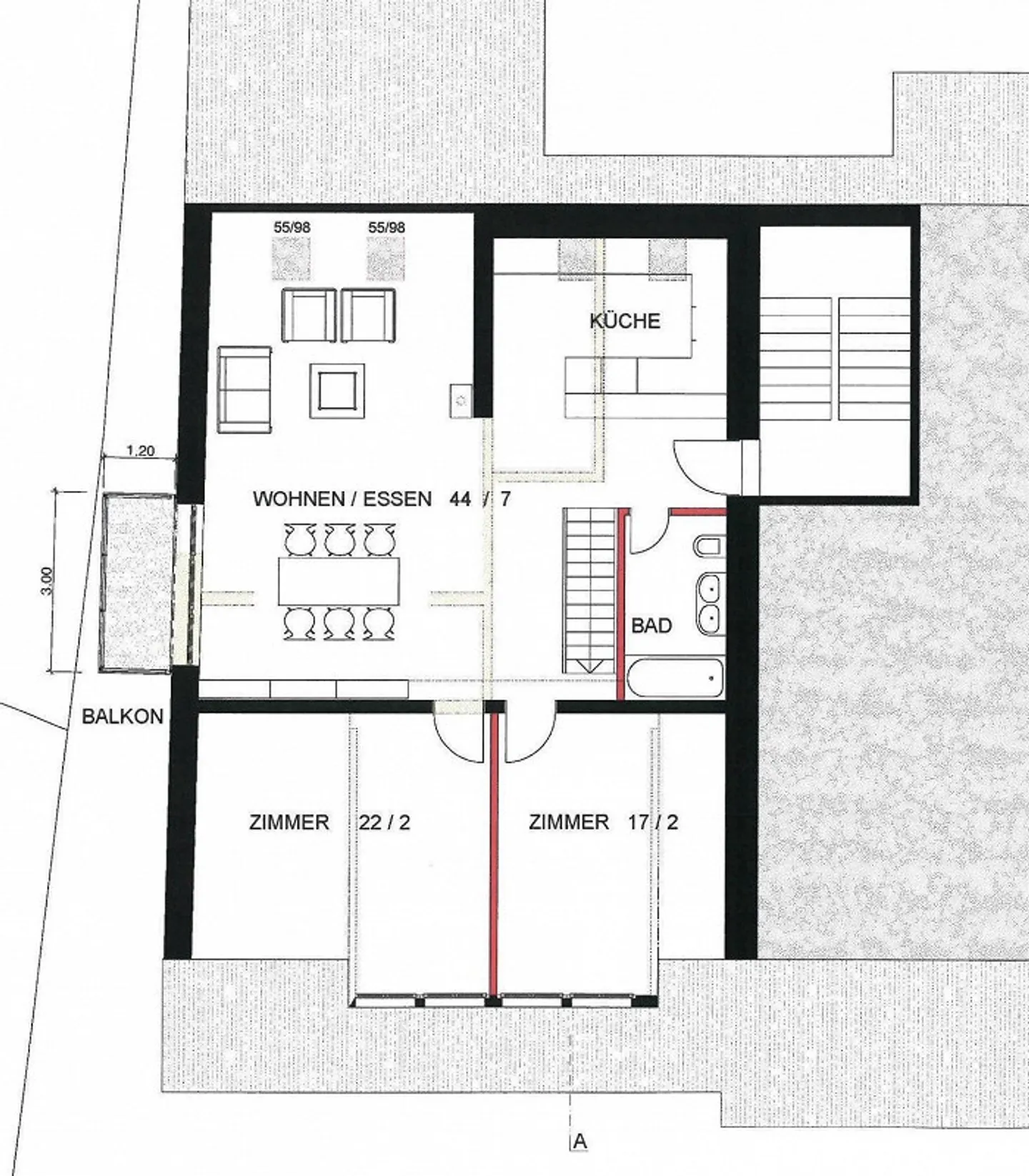
Appartamento duplex spazioso e moderno di 4,5 stanze nel centro del villaggio
In affitto in una zona ben collegata di Schinznach-Dorf:
Appartamento mansardato luminoso e spazioso su 2 piani con stufa svedese, lavatrice/asciugatrice e molto spazio di stoccaggio aggiuntivo.
Cucina moderna con piano in granito
2 bagni
Propria lavatrice e asciugatrice
Balcone esposto al sole del pomeriggio
Pavimenti in parquet nel soggiorno e nelle camere da letto
Armadi a muro
Il villaggio rurale, immerso nei vigneti, offre anche una buona infrastruttura per le famiglie. Sia nel villaggio che nella ...
Ripartizione dei costi
- Affitto netto
- CHF 1’990
- Costi aggiuntivi
- CHF 180
- Totale delle locazioni
- CHF 1’990
Dettagli immobile
- Disponibile dal
- Su accordo
- Stanze
- 4.5
- Anno di costruzione
- 2002
- Superficie abitabile
- 130 m²
- Piano
- 9°


