Appartamento in affitto - Krebsbärenhalde 2, 6048 Horw
Perché amerai questa proprietà
Ampio soggiorno
Cucina aperta con elettrodomestici
Balcone con vista sul verde
Organizza una visita
Prenota una visita con Tashi oggi!
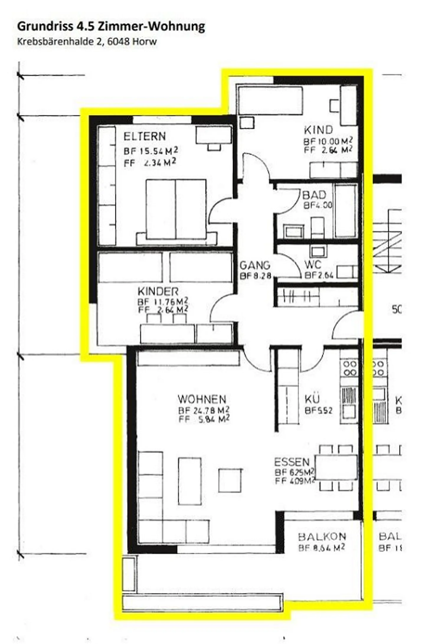
Appartamento attraente di 4,5 stanze in affitto fino al 31.10.2026
Affittiamo un appartamento antico luminoso e accogliente
La tua nuova casa offre:
- grande soggiorno con pavimento in parquet
- camere da letto spaziose con pavimento in parquet
- cucina aperta con lavastoviglie, grande frigorifero, forno, ecc.
- bagno con vasca, wc e specchiera
- doccia separata con wc e specchiera
- balcone con vista sul verde
- posto auto esterno a CHF 70.-/mese può essere affittato in aggiunta
- posto auto in garage a CHF 120.-/mese può essere affittato in aggiunta
I mezzi pubblici e ...
Ripartizione dei costi
- Affitto netto
- CHF 1’780
- Costi aggiuntivi
- CHF 300
- Totale delle locazioni
- CHF 1’780
Dettagli immobile
- Disponibile dal
- Su accordo
- Stanze
- 4.5
- Superficie abitabile
- 89 m²
- Piano
- 2°



