Loft in affitto - Katharina-Sulzer-Platz 2, 8400 Winterthur
Perché amerai questa proprietà
Soffitti alti 3m luminosi
Cucina moderna con elettrodomestici
Accesso alla terrazza condivisa
Organizza una visita
Prenota una visita oggi!
Loft 1 stanza
Loft originale nella pista della gru - AFFITTO SENZA DEPOSITO
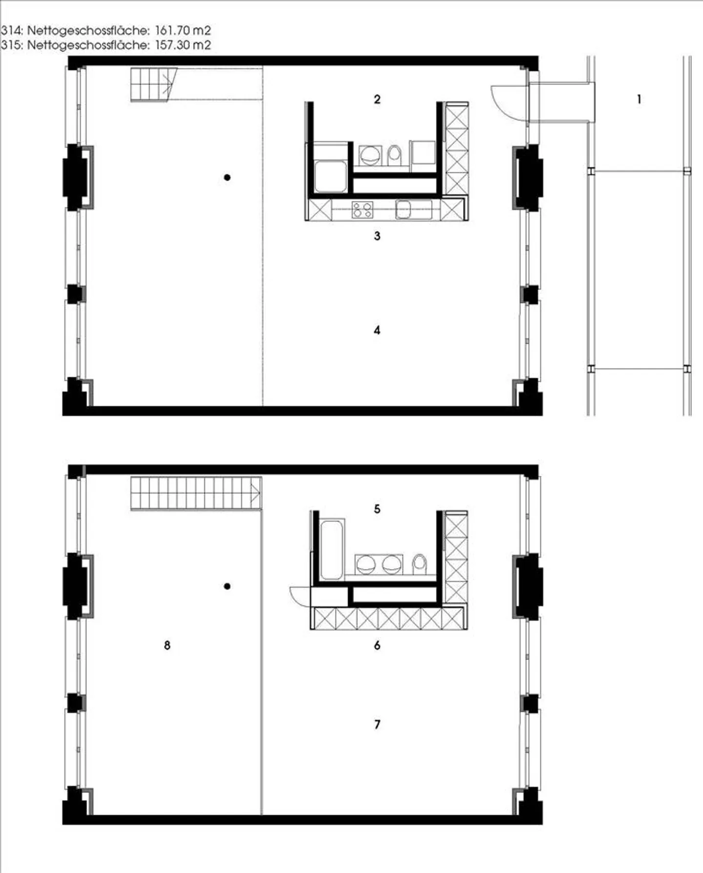
- Superficie abitabile di circa 180 m2
- Stanza luminosa, alta circa 3 m
- Pavimentazione in parquet
- Standard di costruzione più moderno
- Cucina con ceramica a vetro, lavastoviglie e vapore
- Grande bagno/WC con doppio lavabo
- Proprio torre di lavaggio nell'appartamento
- 2° piano con ascensore
- Terrazza ad uso comune
- A 5 minuti a piedi dalla stazione centrale e dalla città
- Posti auto a Fr. 175.--/mese
Vedi anche: www.kranbahn.ch => ...
Ripartizione dei costi
- Affitto netto
- CHF 3’255
- Costi aggiuntivi
- CHF 355
- Totale delle locazioni
- CHF 3’255
Dettagli immobile
- Disponibile dal
- Su accordo
- Stanze
- 1
- Superficie abitabile
- 170 m²



