Appartamento in affitto - Haldenweg 2, 4310 Rheinfelden
Perché amerai questa proprietà
Balcone accogliente per rilassarsi
Camere luminose per il comfort
Cucina aperta con elettrodomestici moderni
Organizza una visita
Prenota una visita oggi!
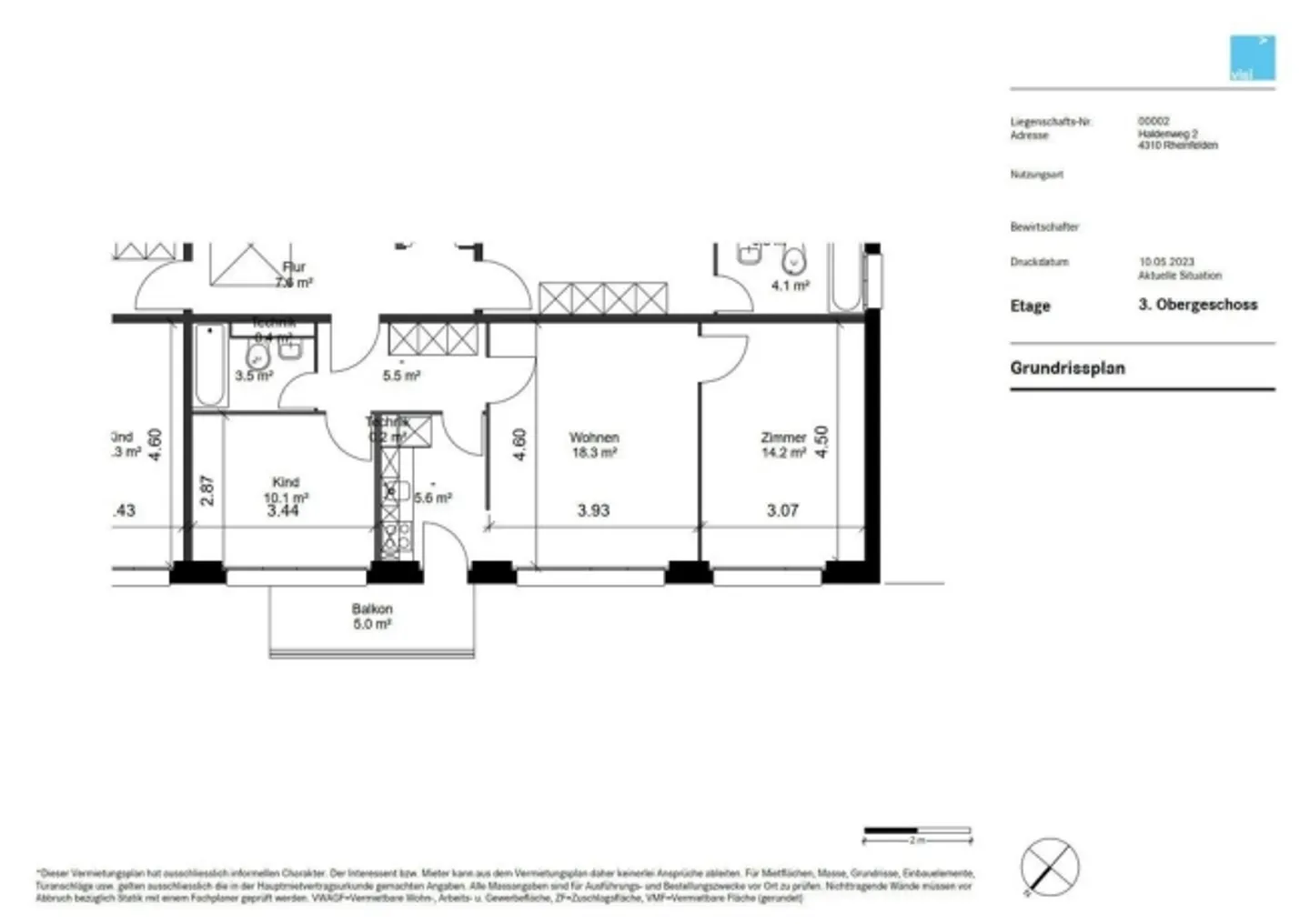
Il tuo nuovo appartamento a rheinfelden
Dal 01.02.2026 affittiamo questo bellissimo e moderno appartamento di 3.0 stanze.
L'appartamento offre le seguenti comodità:
- Soggiorno e camere da letto con pavimento in parquet
- Cucina, bagno e corridoio con pavimento in piastrelle scure di facile manutenzione
- Stanze luminose che offrono un piacevole senso di abitabilità
- Cucina aperta con piano cottura in vetroceramica, lavastoviglie, forno e spazio di stoccaggio per i tuoi utensili da cucina
- Bagno con WC, doppio lavabo, armadietto a specchi...
Ripartizione dei costi
- Affitto netto
- CHF 1’439
- Costi aggiuntivi
- CHF 200
- Totale delle locazioni
- CHF 1’439
Dettagli immobile
- Disponibile dal
- Su accordo
- Stanze
- 3
- Superficie abitabile
- 57 m²
- Piano
- 3°



