Appartamento in affitto - Bernhauserstrasse 2, 9216 Heldswil
Perché amerai questa proprietà
Cucina moderna con porte USB
Balcone con vista tramonto
Spazio ufficio a casa flessibile
Organizza una visita
Prenota una visita con Buchegger oggi!
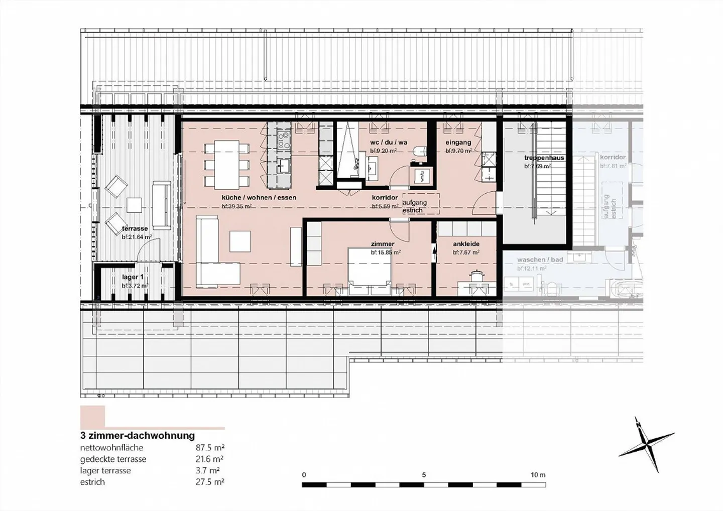
Fascino sotto il tetto: Appartamento luminoso con 3 stanze e sole serale
Descrizione: Stai cercando qualcosa di speciale? Questo appartamento mansardato a Heldswil offre comfort moderno combinato con un'atmosfera accogliente. Grazie alla costruzione secondo standard di proprietà e all'alta qualità dell'attrezzatura tecnica, non ci sono desideri insoddisfatti.
Una casa con passione: Dove la qualità incontra la passione
Prima di passare ai fatti, una cosa è importante per noi: Questa proprietà è molto più di un semplice investimento. Dallo schizzo iniziale alla selezione...
Ripartizione dei costi
- Affitto netto
- CHF 1’670
- Costi aggiuntivi
- CHF 170
- Totale delle locazioni
- CHF 1’670
Dettagli immobile
- Disponibile dal
- Su accordo
- Stanze
- 3
- Anno di costruzione
- 2026
- Superficie abitabile
- 87 m²
- Piano
- 2°
- Piani dell'edificio
- 2


