1 / 10

Appartamento in affitto - Kornfeldstrasse 1a, 6210 Sursee

1° piano
CHF 8.-
-

Perché amerai questa proprietà

Spazio flessibile da 120 m²

Accesso facile tramite montacarichi

Posizione privilegiata vicino all'A2

Organizza una visita

Prenota una visita con Gewerbe-Treuhand oggi!

Gewerbe-Treuhand AG
Gewerbe-Treuhand AG
Questa descrizione è stata tradotta automaticamente da Tedesco.

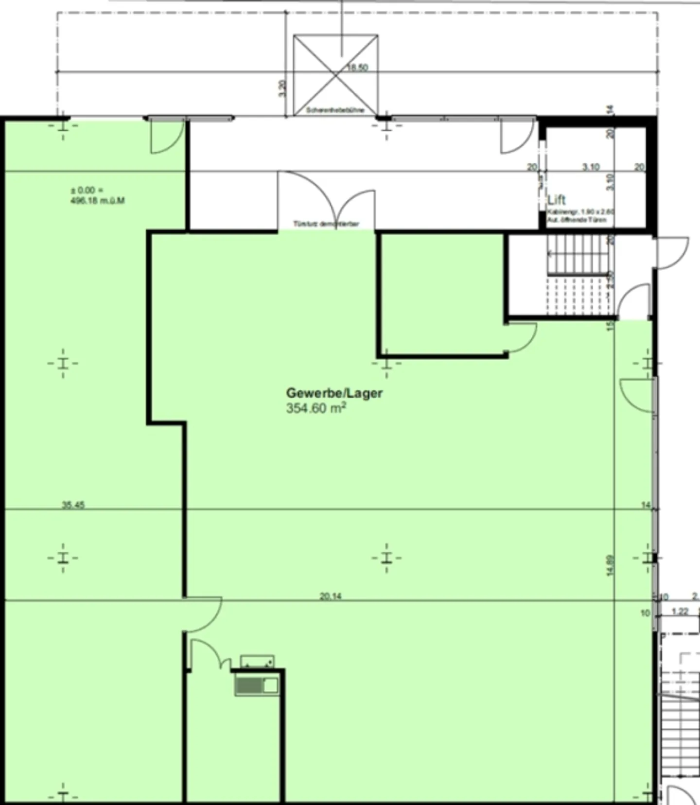
Offriamo l'opportunità unica di affittare spazi generosi per uso commerciale, ufficio o magazzino in una posizione ottimale.

L'area di stoccaggio al 1° piano totale 781 m² e può essere utilizzata individualmente in base alle vostre esigenze. Su richiesta, è possibile anche una suddivisione in unità più piccole a partire da 120 m². Questo consente di creare aree di stoccaggio o di lavoro su misura che soddisfano le vostre esigenze.

Il design aperto offre molte possibilità. Le scaffalature di stocca...

Dettagli immobile

Disponibile dal
Su accordo
Piano

Agenzia

Gewerbe-Treuhand AG
Gewerbe-Treuhand AG
Indirizzo:Eichwaldstrasse 13, 6002, Luzern
Ref: 7669980

Località

Kornfeldstrasse 1a, 6210 Sursee

Fonti