Appartamento in affitto - Rue Du Pré-De-La-Fontaine 19, 1242 Satigny
Perché amerai questa proprietà
Layout luminoso e modulabile
Posizione ottimale a ZIMEYSA
Condizioni di affitto attraenti
Organizza una visita
Prenota una visita oggi!
Oggetto industriale
Superfici miste in affitto - Satigny - Da 200 m2
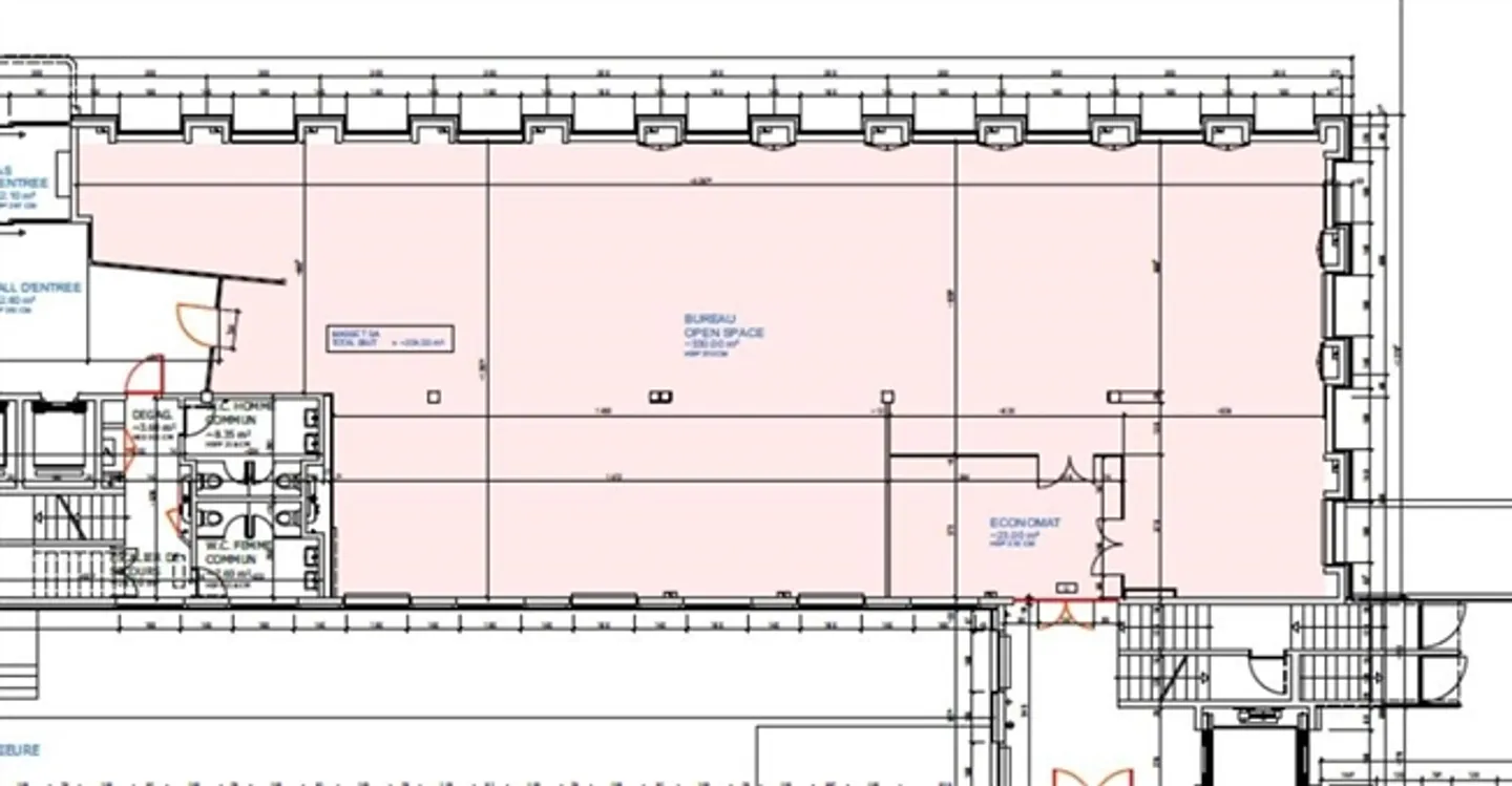
All'interno di un edificio moderno, beneficia di una posizione ottimale nel cuore della ZIMEYSA. Queste superfici sono ideali per uffici e/o laboratori. I locali sono in buone condizioni, luminosi e modulari.
Punti salienti:
Superficie divisibile da 200 m2
Luminosità e piani modulari
Posizione: ZIMEYSA
Affitto attraente
Caratteristiche tecniche:
Montacarichi di 1T6
Carico a terra: 500 kg
Altezza sotto soffitto: 3m10 (dalla lastra alla lastra)
Perc...
Dettagli immobile
- Disponibile dal
- Su accordo


