Appartamento in affitto - Rue De La Chenalette 19, 1020 Renens VD
Perché amerai questa proprietà
Ampio balcone privato
Aree lounge comunitarie
Circondato da un parco verde
Organizza una visita
Prenota una visita oggi!
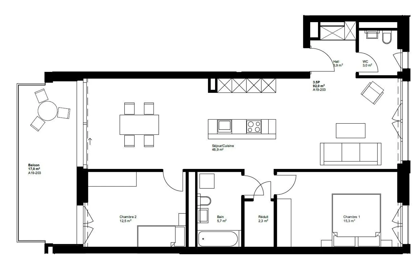
3.5 stanze nuove con balcone - a19-203
Consegna prevista a partire dalla primavera 2026
Scopri LES CHÊNES DE RENENS, un nuovo quartiere residenziale che offre 175 appartamenti nuovi in affitto, dallo studio accogliente ai spaziosi appartamenti familiari da 5.5 stanze, passando per duplex con laboratori privati e alloggi a prezzi accessibili. Qui, ogni stile di vita trova il suo posto!
Tutti gli appartamenti si distinguono per la loro generosa superficie, la loro disposizione ottimale e le finiture di alta qualità, offrendo un ambiente ...
Ripartizione dei costi
- Affitto netto
- CHF 2’645
- Costi aggiuntivi
- CHF 305
- Totale delle locazioni
- CHF 2’645
Dettagli immobile
- Disponibile dal
- 01.05.2025
- Stanze
- 3.5
- Anno di costruzione
- 2025
- Superficie abitabile
- 92 m²
- Piano
- 2°



