Appartamento in affitto - Grüneggstrasse 19, 6005 Luzern
Perché amerai questa proprietà
Cucina aperta con lavastoviglie
Ampio balcone con vista
Parco giochi per famiglie nelle vicinanze
Organizza una visita
Prenota una visita con Wincasa oggi!
Posizione:
Questo appartamento colpisce per la sua posizione centrale e tranquilla. I collegamenti con i mezzi pubblici sono attraenti. L'accesso all'autostrada è nelle immediate vicinanze. Le strutture commerciali e un'ampia gamma di attività ricreative sono convincenti nella loro diversità.
L'appartamento è ideale grazie alla sua posizione in una zona tranquilla a 30 km/h, al piccolo parco giochi interno, all'area di svago locale attraente e all'ambiente familiare e sicuro.
Dotazione:
- Cucina ...
Ripartizione dei costi
- Affitto netto
- CHF 2’210
- Costi aggiuntivi
- CHF 220
- Totale delle locazioni
- CHF 2’210
Dettagli immobile
- Disponibile dal
- Su accordo
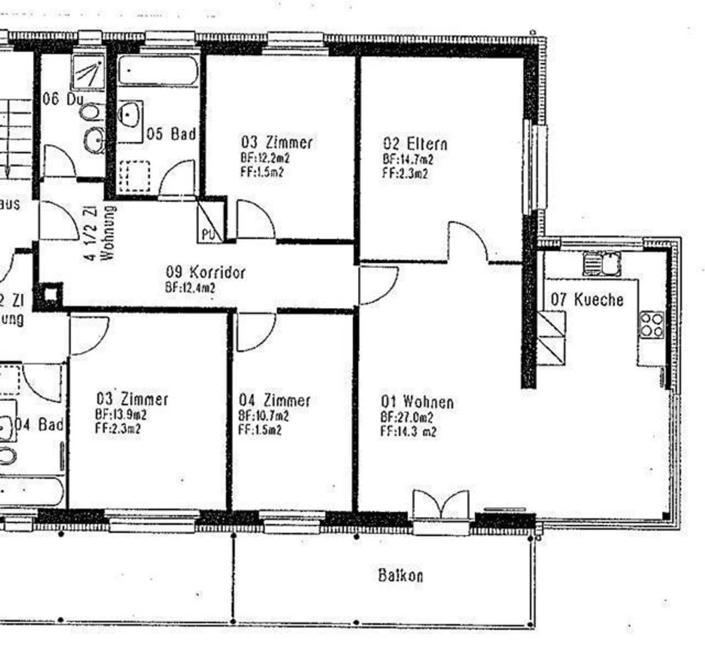
- Stanze
- 4.5
- Anno di costruzione
- 1952
- Superficie abitabile
- 99 m²
- Piano
- 2°



