Appartamento in affitto - Etzmattrain 19, 3322 Urtenen-Schönbühl
Perché amerai questa proprietà
Design cucina aperta
Patio soleggiato
Accesso diretto ai mezzi
Organizza una visita
Prenota una visita con Wincasa oggi!
Appartamento soleggiato con area salotto cercasi? - Affitto senza deposito
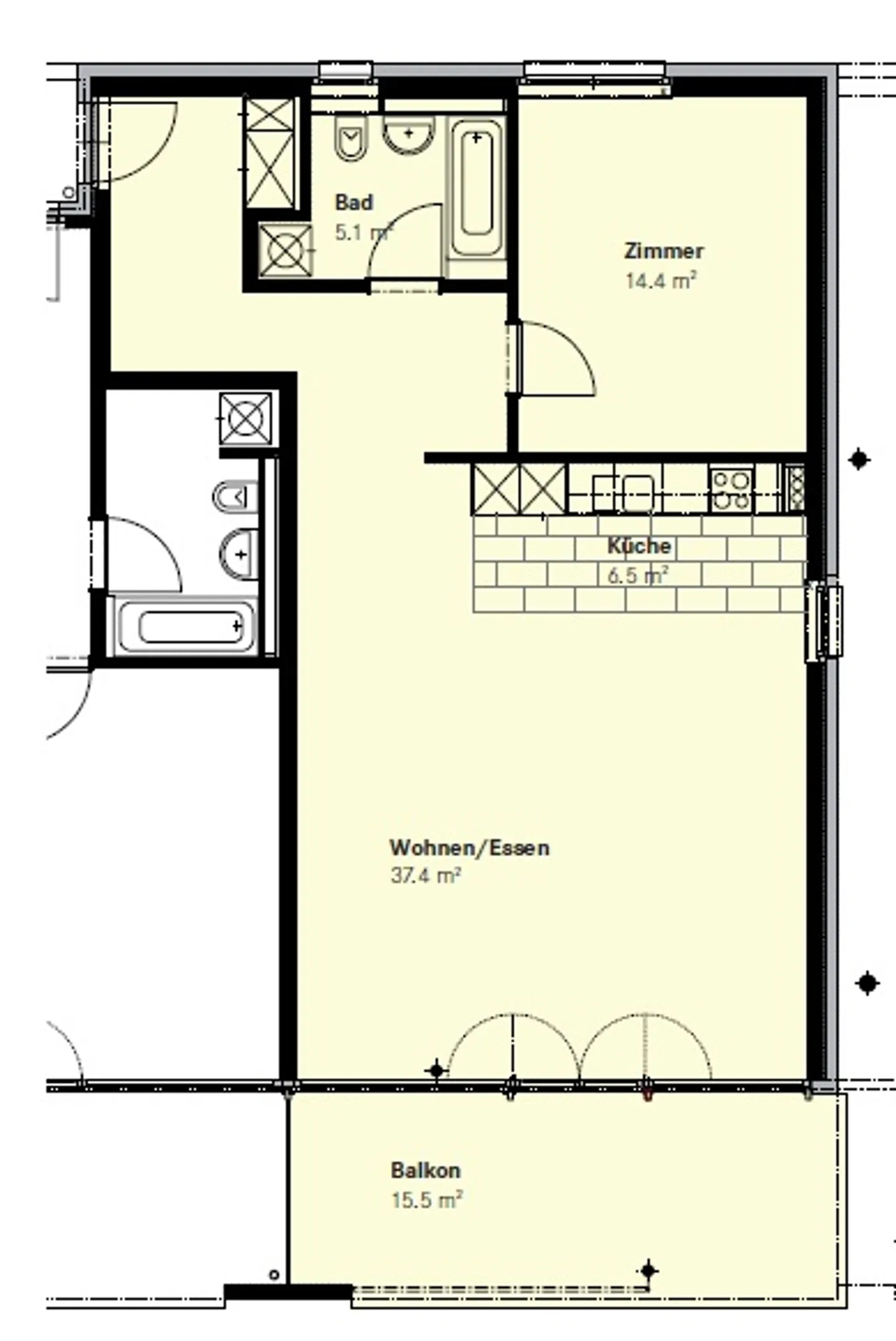
Nell'Etzmattrain ti sentirai sicuramente a tuo agio. Dalla disposizione e dall'arredamento dell'appartamento alla natura circostante - tutto aspetta che tu ti trasferisca.
- Anno di costruzione 2012
- Pianta ben pensata
- Rivestimenti in parquet/piastrelle
- Bagno con vasca
- Torre di lavaggio propria
- Cucina aperta
- Piano cottura in vetroceramica e lavastoviglie
- Area salotto soleggiata
- Cantina
- I mezzi pubblici si trovano proprio davanti alla porta
- I negozi sono raggiungibili in pochi minuti a p...
Ripartizione dei costi
- Affitto netto
- CHF 1'639
- Costi aggiuntivi
- CHF 199
- Totale delle locazioni
- CHF 1'639
Dettagli immobile
- Disponibile dal
- 01.02.2026
- Stanze
- 2.5
- Anno di costruzione
- 2013
- Superficie abitabile
- 75 m²
- Piano
- Terra



