Appartamento in affitto - Bergstrasse 19, 8142 Uitikon Waldegg
Perché amerai questa proprietà
Soggiorno luminoso con camino
Loggia per relax all'aperto
Vicino ai mezzi pubblici
Organizza una visita
Prenota una visita oggi!
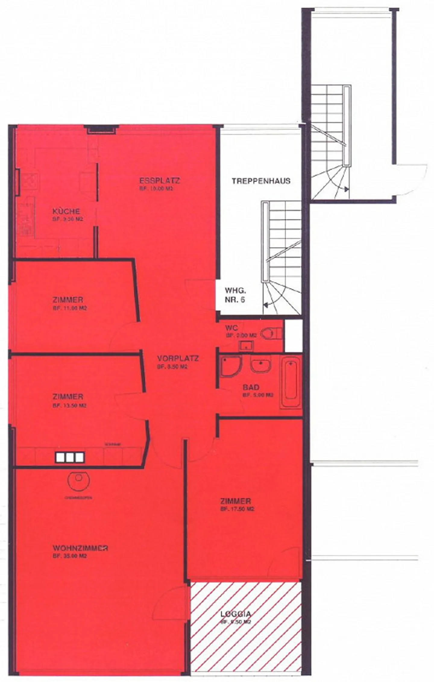
Appartamento tranquillo di 4,5 stanze a 15 min dalla stazione di Zurigo
A partire dal 1 maggio 2026, affitteremo il nostro spazioso, luminoso e tranquillo appartamento a Uitikon Waldegg, che è vantaggioso dal punto di vista fiscale. La S-Bahn S10 è a soli 100 metri e la stazione centrale di Zurigo è raggiungibile in 15 minuti. Le fermate dell'autobus per Zurigo Wiedikon e Schlieren sono a 400 metri. Per fare la spesa, ci sono Migros, Coop e una farmacia nello stesso luogo. L'area ricreativa di Uetliberg inizia proprio davanti alla porta e offre molte varietà per bam...
Ripartizione dei costi
- Affitto netto
- CHF 3’350
- Costi aggiuntivi
- CHF 550
- Totale delle locazioni
- CHF 3’350
Dettagli immobile
- Disponibile dal
- 01.05.2026
- Stanze
- 4.5
- Anno di costruzione
- 1963
- Superficie abitabile
- 121 m²
- Piano
- 2°



