Appartamento in affitto - Riedtalstrasse 18a, 4800 Zofingen
Perché amerai questa proprietà
Cucina aperta con pietra
Loggia spaziosa per relax
Finestre panoramiche luminose
Organizza una visita
Prenota una visita con *** oggi!
Vivere nel Riedtal | Qualità della vita | Espansione elegante | Vicino alla natura
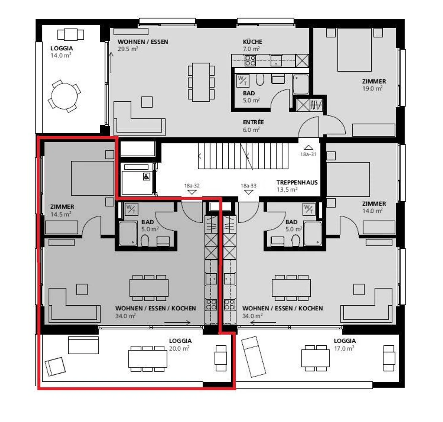
Questo appartamento di 2,5 stanze, situato al 3° piano, cerca nuovi inquilini dal 1° aprile 2026 o su accordo.
L'appartamento offre le seguenti caratteristiche:
- Cucina aperta con piano di lavoro in pietra naturale di alta qualità e moderni elettrodomestici
- Il soggiorno e la sala da pranzo si distinguono per una dimensione di circa 34 m2 e per le finestre panoramiche a tutta altezza che forniscono molta luce naturale e conferiscono alla stanza un certo fascino
- Ampia camera da letto, circa 14 m2...
Ripartizione dei costi
- Affitto netto
- CHF 1’600
- Costi aggiuntivi
- CHF 200
- Totale delle locazioni
- CHF 1’600
Dettagli immobile
- Disponibile dal
- Su accordo
- Stanze
- 2.5
- Superficie abitabile
- 54 m²
- Piano
- 3°
- Piani dell'edificio
- 1



