Appartamento in affitto - Bernstrasse 180, 3072 Ostermundigen
Perché amerai questa proprietà
Cucina aperta e luminosa
Ampio balcone di 60m2
Posizione centrale e tranquilla
Organizza una visita
Prenota una visita con Tony oggi!
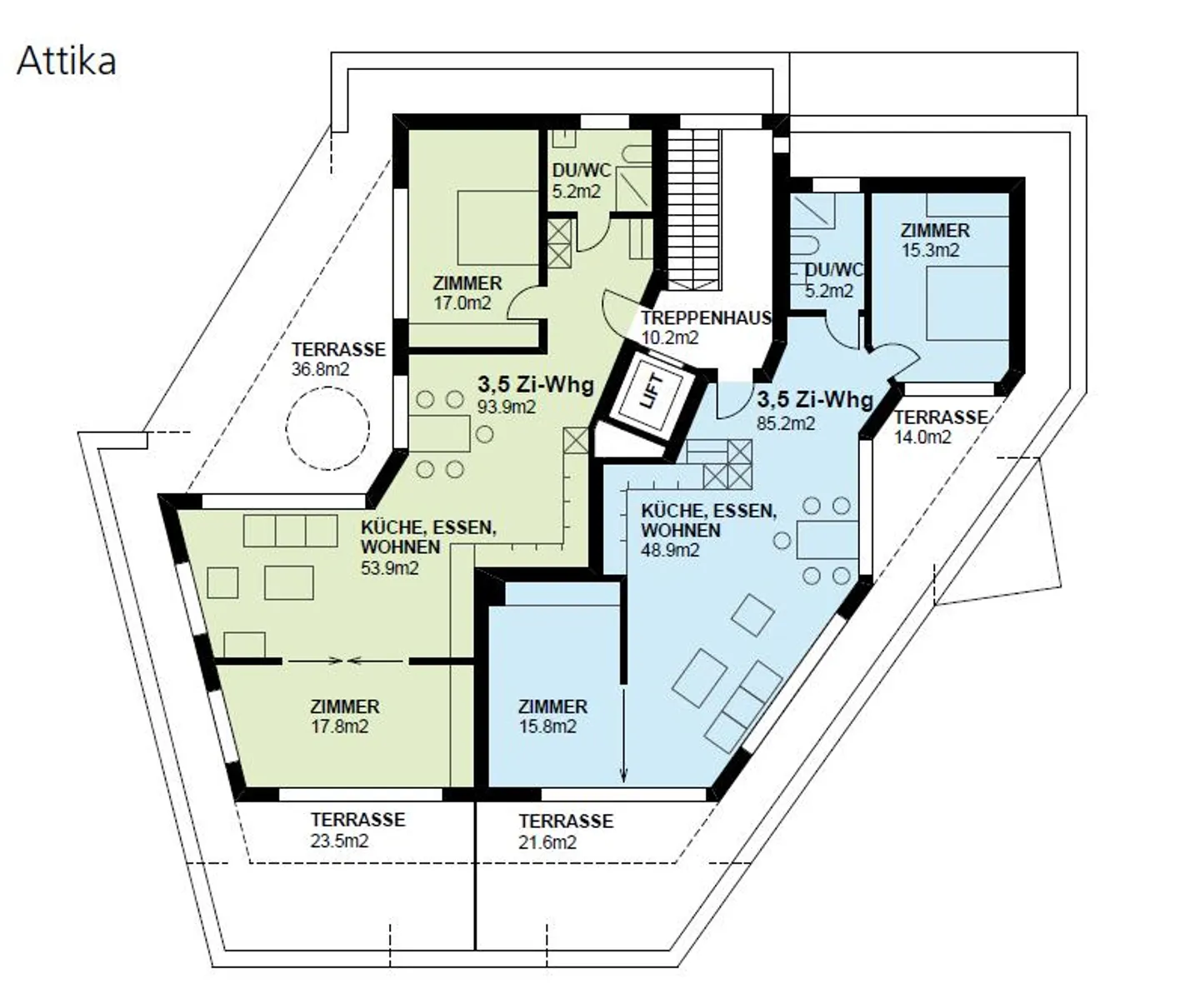
Balcone di 60m2 - Attico con standard di proprietà cercato?
Affittiamo il bellissimo appartamento attico luminoso dal 01.03.2026 o su accordo.
L'appartamento dispone delle seguenti caratteristiche oltre allo standard di sviluppo moderno:
* - Cucina aperta e luminosa con piano cottura in vetroceramica e lavastoviglie
* - Camere con pavimenti in parquet
* - Bagno con doccia e mobile sottolavabo integrato
* - Vari armadi a muro nell'appartamento
* - Grande facciata di finestre
* - Pianta generosa
* - Balcone di 60m2 (parzialmente coperto)
* - Posizione centrale e tr...
Ripartizione dei costi
- Affitto netto
- CHF 2'450
- Costi aggiuntivi
- CHF 290
- Totale delle locazioni
- CHF 2'450
Dettagli immobile
- Disponibile dal
- 01.03.2026
- Stanze
- 3
- Anno di costruzione
- 2011
- Superficie abitabile
- 94 m²
- Piano
- 2°



