Appartamento in affitto - Wingertstrasse 18, 7012 Felsberg
Perché amerai questa proprietà
Balcone accogliente con vista
Ambiente caldo con camino
Pavimento in parquet affascinante
Organizza una visita
Prenota una visita oggi!
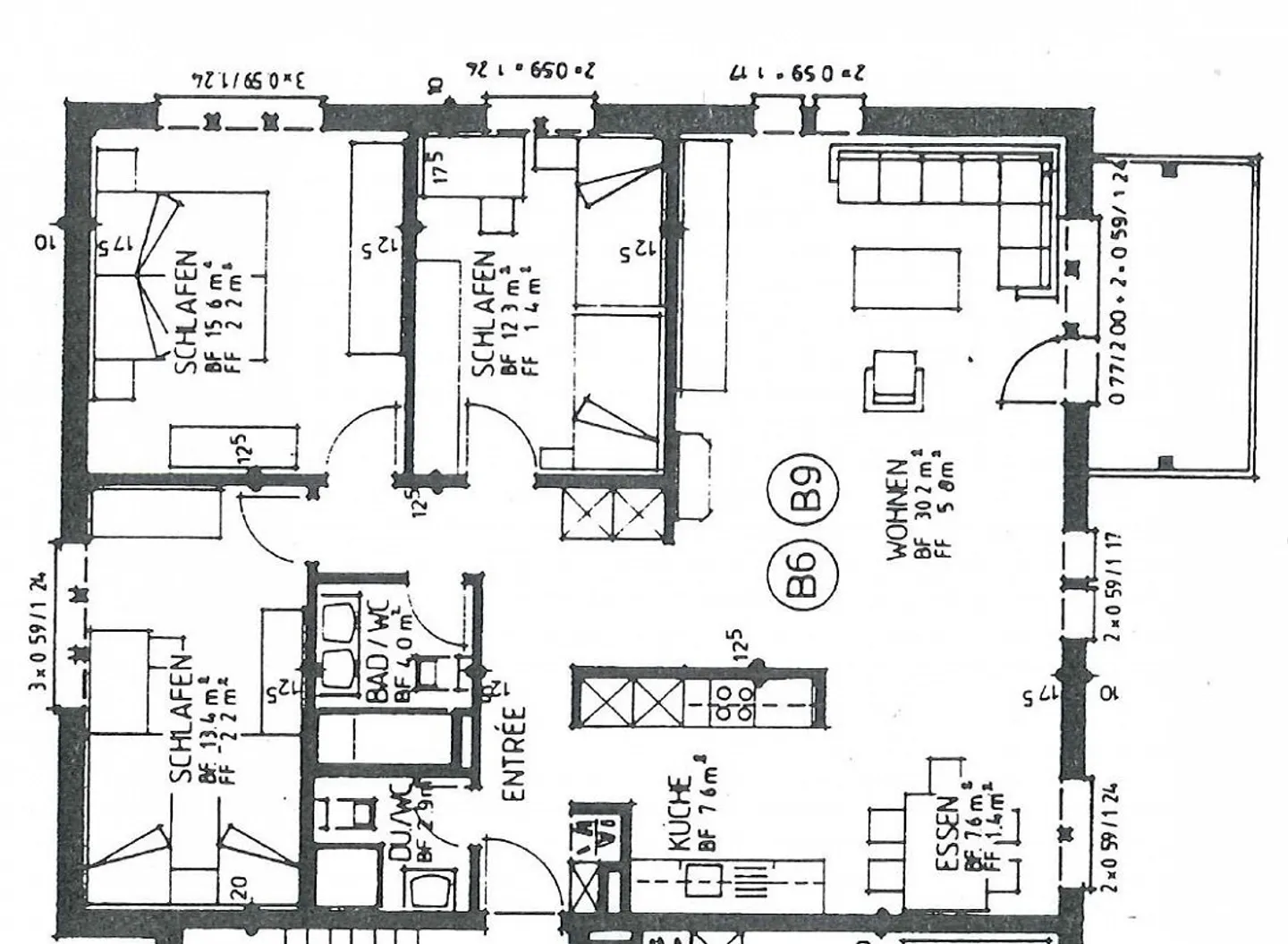
Appartamento soleggiato di 4 ½ stanze
A partire dal 1° giugno 2026, o su accordo, affittiamo un appartamento soleggiato di 4 ½ stanze all'ultimo piano in Wingertstrasse 18 a Felsberg.
Il soggiorno è dotato di un accogliente camino e di pavimenti in parquet. L'appartamento dispone anche di un accogliente balcone con una bella vista.
Un posto auto nel garage sotterraneo può essere affittato per CHF 100.00 / mese. Anche un posto auto all'aperto può essere affittato per CHF 40.00 / mese.
Se abbiamo suscitato il vostro interesse, non vediam...
Ripartizione dei costi
- Affitto netto
- CHF 1'867
- Costi aggiuntivi
- CHF 170
- Totale delle locazioni
- CHF 1'867
Dettagli immobile
- Disponibile dal
- Su accordo
- Stanze
- 4.5
- Piano
- 9°
- Piani dell'edificio
- 3



