Appartamento in affitto - Rue Des Longs-Prés 18, 3960 Sierre
Perché amerai questa proprietà
Orientamento soleggiato a sud
Ampio prato comune
Piano di lavoro in granito
Organizza una visita
Prenota una visita con SZ oggi!
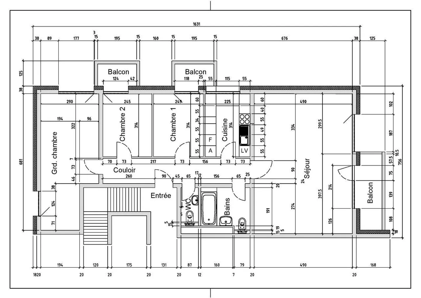
Appartamento di 4.5 locali sui alti di sierre
Situato nel quartiere ricercato di Longs-Prés, questo spazioso appartamento di 4.5 locali è una proprietà ideale per una famiglia.
L'edificio beneficia di un ampio prato comune e un parco giochi per bambini si trova nelle vicinanze.
L'orientamento a sud di questo appartamento offre un'illuminazione ottimale per tutto il giorno.
Questo alloggio è distribuito come segue:
- Ingresso
- 1 Grande camera da letto
- 2 Piccole camere con balcone
- 1 WC ospiti
- 1 Bagno
- 1 Cucina abitabile con piano di lavoro in ...
Ripartizione dei costi
- Affitto netto
- CHF 1’400
- Costi aggiuntivi
- CHF 200
- Totale delle locazioni
- CHF 1’600
Dettagli immobile
- Disponibile dal
- 15.01.2026
- Stanze
- 4.5
- Superficie abitabile
- 100 m²
- Superficie utilizzabile
- 100 m²
- Piano
- 2°




