Appartamento in affitto - Rue De La Léchère 18, 1630 Bulle
Perché amerai questa proprietà
Cucina americana spaziosa
Elegante pavimento in legno
Ampia terrazza soleggiata
Organizza una visita
Prenota una visita oggi!
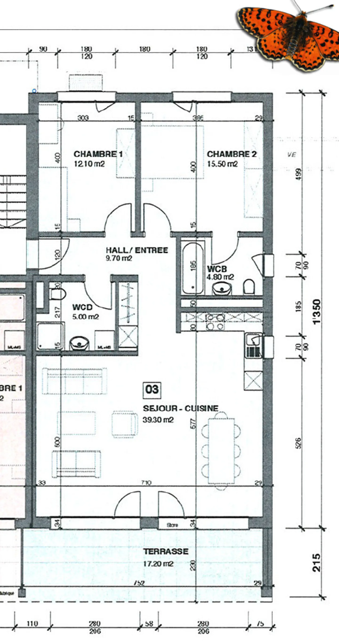
Molto bel appartamento 3 stanze - con grande terrazza!
Questo edificio offre una qualità della vita impeccabile in un ambiente luminoso.
Due belle camere da letto, un soggiorno piacevole, una splendida cucina americana attrezzata e due bagni con colonna di lavaggio ti piaceranno immediatamente.
Il parquet massiccio, gli armadi a muro e la terrazza daranno il fascino e il comfort sognati.
VISITA CON ALEXANDRA SU APPUNTAMENTO AL [vedi dettagli di contatto](#contact)!
Ripartizione dei costi
- Affitto netto
- CHF 1’895
- Costi aggiuntivi
- CHF 245
- Totale delle locazioni
- CHF 1’895
Dettagli immobile
- Disponibile dal
- 01.04.2026
- Stanze
- 3.5
- Superficie abitabile
- 87 m²
- Superficie utilizzabile
- 87 m²
- Piano
- Terra



