Appartamento in affitto - Büttenenstrasse 18, 6006 Luzern
Perché amerai questa proprietà
Appartamento luminoso all'ultimo piano
Cucina moderna attrezzata
Balcone con vista mozzafiato
Organizza una visita
Prenota una visita oggi!
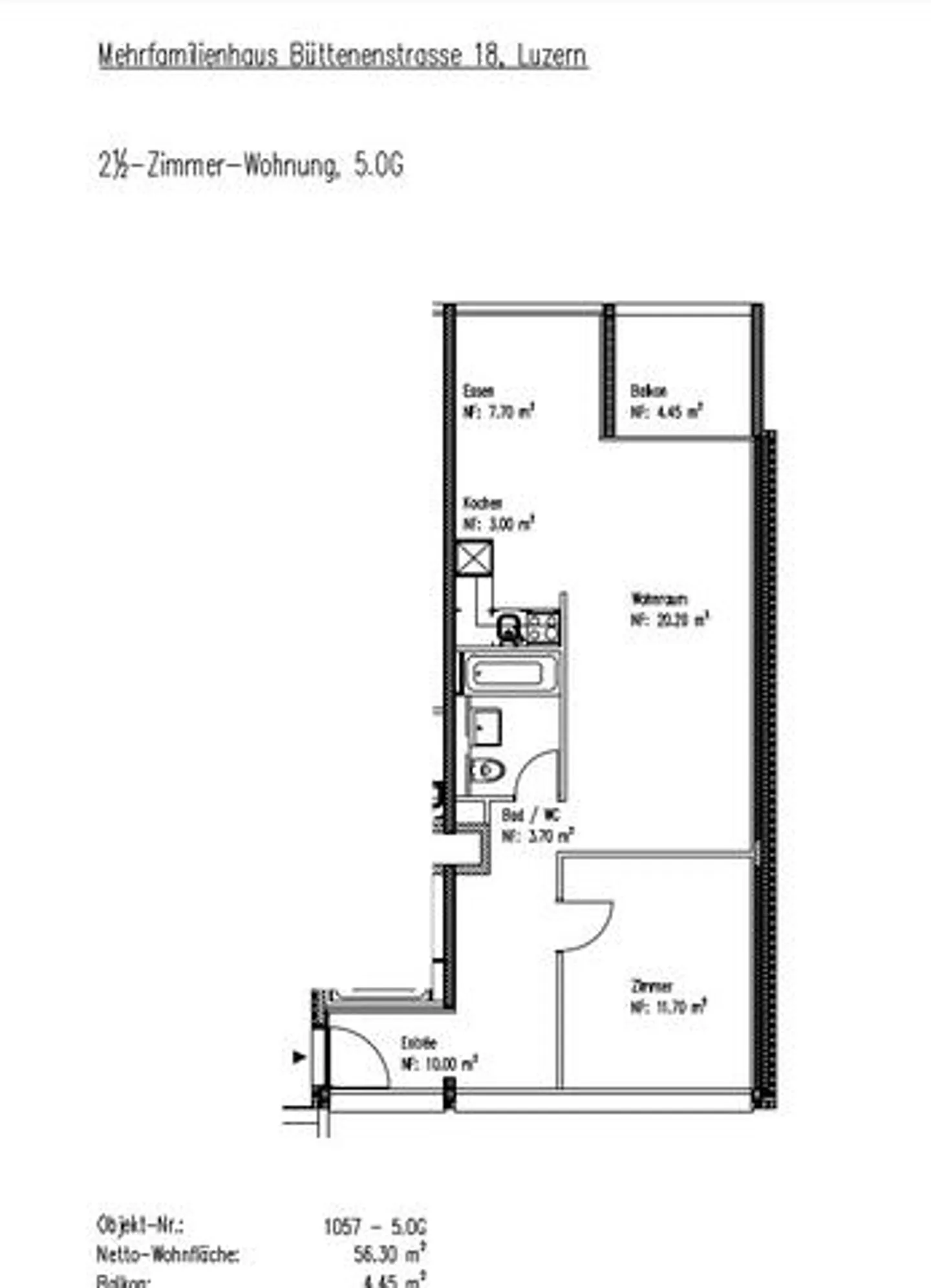
Appartamento di 2,5 stanze alla periferia di Lucerna
Proprietà completamente ristrutturata (2010) in una posizione tranquilla, appartamento luminoso al 5° piano, pavimento in parquet nelle stanze, cucina moderna con tutti i comfort, bagno/WC e balcone con una bella vista.
Un locale cantina appartiene anche all'appartamento. Inizio affitto: 1 febbraio 2026
Area ricreativa e collegamento autobus alla stazione di Lucerna proprio davanti alla porta di casa.
Un posto auto in garage può essere affittato per CHF 130.00 al mese.
Per ulteriori informazioni, si...
Ripartizione dei costi
- Affitto netto
- CHF 1’410
- Costi aggiuntivi
- CHF 190
- Totale delle locazioni
- CHF 1’410
Dettagli immobile
- Disponibile dal
- Su accordo
- Stanze
- 2.5
- Anno di costruzione
- 1974
- Superficie abitabile
- 56 m²
- Piano
- 5°



